Te koop Appartement

Beschrijving van   

Vergelijk realty's

Te koop Appartement

Appartement Appartement Appartement Appartement
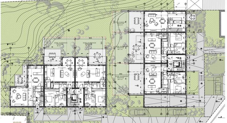
51/00.02 : Appartement RDC 2 ch. 91 m², terrasse 35m² et jardin 39m² A 3 minutes du centre de Mont-Saint- Guibert et de sa gare,100m d'un arrêt de bus avec un accès facile à la N25, N4 et E411, magnifique résidence constituée de 2 bâtiments comprenant 12 appartements et de 2 villas/appartements duplex. Chaque appartement dispose d'une terrasse ou d'un balcon orienté sud permettant une jolie vue sur les jardins et champs. Les appartements 2 et 3 chambres vont de 90m² à 147m². Les bâtiments sont construits selon la norme "QZEN" et permettent de très belles économies d'énergie. Caves et parkings en sous-sols en sus. Vente sous régime TVA à 6 ou 21% jusqu'au 31/12/2024. PEB A+. Tous les renseignements disponibles en nos bureaux
Type vastgoed Appartement
Prijs 329.000
Bewoonbare opp. 91
Aantal slaapkamers 2