Te koop Ruim duplex appartement

Beschrijving van   

Vergelijk realty's

Te koop Ruim duplex appartement

Ruim duplex appartement Ruim duplex appartement Ruim duplex appartement Ruim duplex appartement Ruim duplex appartement Ruim duplex appartement Ruim duplex appartement Ruim duplex appartement Ruim duplex appartement Ruim duplex appartement Ruim duplex appartement Ruim duplex appartement Ruim duplex appartement Ruim duplex appartement Ruim duplex appartement Ruim duplex appartement
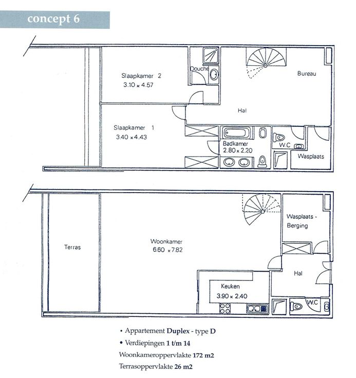
Ruim (te renoveren) duplex appartement met schitterend uitzicht en een uitstekende indeling, klaar om naar eigen smaak gerenoveerd te worden. 9e verdieping: Bij binnenkomst word je verwelkomd door een ruime inkomhal met een handige vestiairekast en een gastentoilet op natuurstenen vloer. Daarnaast vind je een grote berging die veel opbergruimte biedt. De lichte en ruime woonkamer van ongeveer 52 m² is perfect om gezellig te ontspannen en biedt toegang tot een zonnig terras van maar liefst 26 m², georiënteerd op het zuidwesten. De keuken is volledig ingericht, maar aan vernieuwing toe, wat de ideale kans biedt om deze volledig naar jouw wensen te moderniseren. 10e verdieping: Op de bovenverdieping bevinden zich twee ruime slaapkamers, elk met hun eigen sanitair. De master bedroom (4,43 m x 3,40 m) beschikt over een aansluitende dressing en een badkamer, terwijl de tweede slaapkamer (4,57 m x 3,10 m) is uitgerust met een eigen doucheruimte. Ook hier is er een apart toilet en een berging/wasplaats voorzien. Optioneel is er de mogelijkheid om een ondergrondse autostaanplaats aan te kopen voor € 20.000,- en eventueel een ondergrondse kelder voor € 6.000,-. Dit is echter geen verplichting. Met een gunstig EPC-label van 93 kWh/m² per jaar (energieklasse A) is dit appartement niet alleen ruim en comfortabel, maar ook energiezuinig. Een fantastische kans voor wie op zoek is naar een stijlvol en ruim appartement met veel potentieel. Woordje uitleg over dez... Renovatieplicht: nee
Type vastgoed Appartement
Prijs 444.000
Bewoonbare opp. 172
Aantal slaapkamers 2
Aantal badkamers 2