Te koop Landhuis

Beschrijving van   

Vergelijk realty's

Te koop Landhuis

Landhuis Landhuis Landhuis Landhuis Landhuis Landhuis Landhuis Landhuis Landhuis Landhuis Landhuis Landhuis
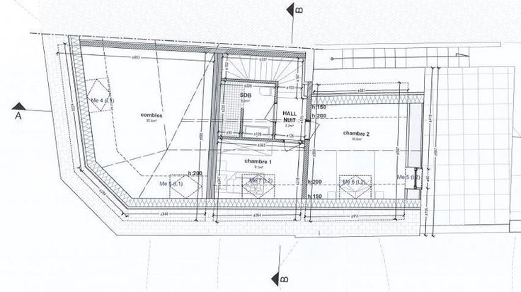
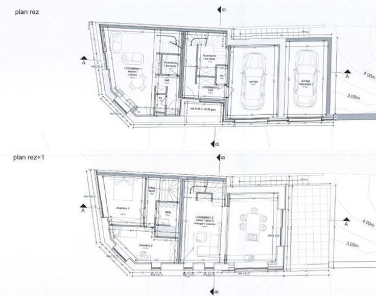
Offre àpd 59.000€. Imposante grange en pierre du pays d'une superficie de +- 100m² au sol. Erigée sur un terrain de 2 ares 50 centiares située au centre de la commune prisée de Cerfontaine. Différentes possibilités s'offrent à vous quant à la rénovation de ce bâtiment rural, un permis d'urbanisme a été octroyé pour la transformation du bâtiment en 2 logements avec garages de 120m² et 95m² ( voir plans). Hauteur sous faîte de 8,75m. RC : 74€. Opportunité unique à saisir ! Idéale pour un investissement ! Ces informations et simulations de travaux sont délivrées à titre informatif et non contractuel.
Type vastgoed Huis
Prijs 59.000
Bewoonbare opp. 100
Aantal slaapkamers 1