Te koop Duplex

Beschrijving van   

Vergelijk realty's

Te koop Duplex

Duplex Duplex Duplex Duplex
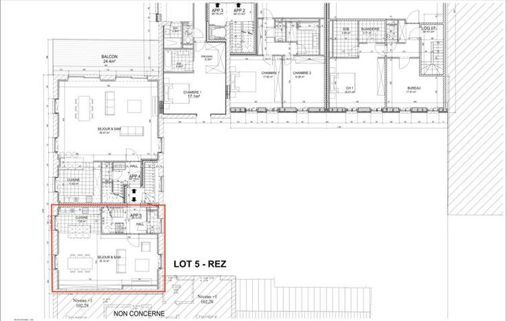
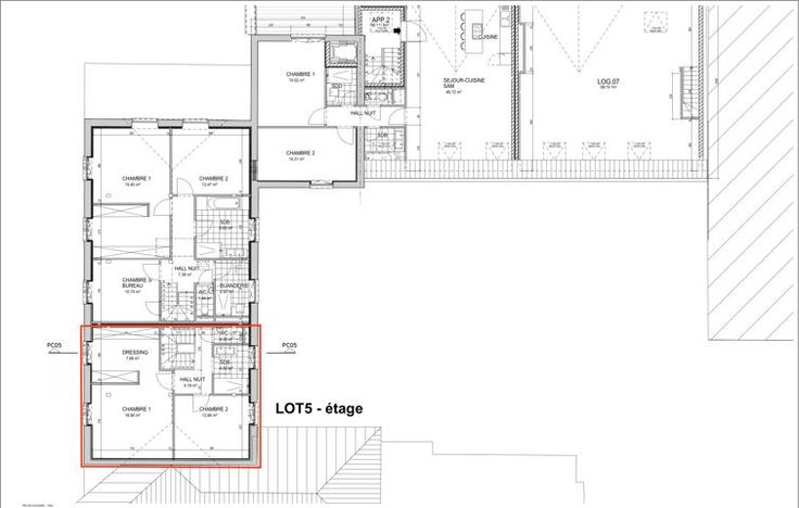
Magnifique duplex neuf 2 chambres dans la résidence "LE MOULIN" , non loin du centre de Braine-le-Château, à proximité immédiate de toutes les facilités et des axes routiers les plus importants. Ce réaménagement du moulin propose des APPARTEMENTS NEUFS de 2 à 3 chambres. Tout en conservant une partie de l'ancienne structure, ce projet a été réalisé avec grand soin. Dotés d’une enveloppe performante à très basse énergie, tous les appartements jouissent d’un niveau de prestations élevé dans leurs finitions et équipements. Parking extérieur en supplément: 7.000 EUR. Cette propriété est proposée à la vente sous le régime TVA de 21 %. Les frais de raccordement et d'acte de base sont à charge des acquéreurs. Si vous désirez obtenir plus d'informations ou planifier une visite, n'hésitez pas à nous contacter.
Type vastgoed Appartement
Prijs 355.000
Bewoonbare opp. 127
Aantal slaapkamers 2
Aantal badkamers 1