Te koop Appartement

Beschrijving van   

Vergelijk realty's

Te koop Appartement

Appartement Appartement Appartement Appartement Appartement Appartement Appartement Appartement
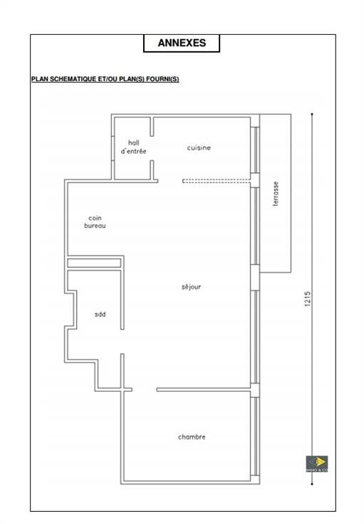
Sorry er is geen nederlandse vertaling beschikbaar. ANDERLECHT- Quartier Veeweyde, l'agence IMMO&CO vous présente un appartement 1 chambre entièrement rénové en 2016 d'une superficie de +/- 70 m² avec terrasse orientée ouest. A proximité de diverses infrastructures, des magasins, des transports en commun et du canal. Situé au 9ème étage, l'appartement bénéficie d'une magnifique vue et d'une belle luminosité. Il se compose comme suit: hall d'entrée, cuisine équipée ouverte avec îlot central, accès à la terrasse de +/- 5 m², salle à manger et séjour de +/- 20 m² , coin bibliothèque/bureau, salle de douche (douche, W.C, lavabo, buanderie), chambre de +/- 12 m². Une cave au sous-sol. Parking avec emplacements de parking réservés aux habitants de l'immeuble. Châssis double vitrage en PVC. Chaudière collective au gaz à cogénération. PEB: E. Renseignements et visites uniquement sur rendez-vous au 02/733.00.84 ou info@immo-and-co.be
Type vastgoed Appartement
Prijs 190.000
Bewoonbare opp. 70
Aantal slaapkamers 1
Aantal badkamers 1