Te koop appartement

Beschrijving van   

Vergelijk realty's

Te koop appartement

appartement appartement appartement appartement appartement appartement appartement appartement appartement appartement appartement appartement appartement
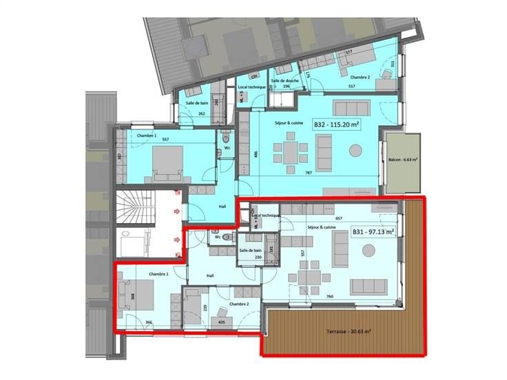
Sorry er is geen nederlandse vertaling beschikbaar. Rue Defuisseaux, B31 – 7333 Tertre Découvrez cet appartement neuf et de standing situé au 3ème étage de la résidence le Grand Angle, offrant un cadre de vie lumineux et moderne. Situé dans une zone privilégiée, cet appartement est idéal pour ceux qui recherchent confort et proximité des commodités, ainsi qu'une excellente opportunité d'investissement. En entrant, vous serez accueilli par un hall desservant 2 chambres de 10 et 13 m², une salle de bains et un vaste séjour de 42 m², baigné de lumière naturelle, s'ouvrant sur une terrasse de 30 m² parfaite pour se détendre. L'appartement comprend également deux emplacements de parking, ajoutant une commodité précieuse à votre quotidien. À seulement 15 minutes en voiture de Mons, vous bénéficierez de la proximité d’une grande ville avec ses nombreux commerces, écoles et loisirs. La gare de Saint-Ghislain est également à seulement 6 minutes, facilitant vos déplacements. Profitez d'un cadre de vie agréable avec toutes les facilités à portée de main. PEB B RC pas encore déterminé. Cet appartement est vendu sous régime TVA, avec un prix de 255.000 € HTVA et deux emplacements de parking à 14.887 € TVAC; Investisseurs, ne passez pas à côté ! Avec sa situation privilégiée et ses nombreuses commodités à proximité, cet appartement représente une opportunité d'investissement exceptionnelle. La forte demande
Type vastgoed Appartement
Prijs 255.000
Bewoonbare opp. 97
Aantal slaapkamers 2