Te koop Bouwgrond

Beschrijving van   

Vergelijk realty's

Te koop Bouwgrond

Bouwgrond Bouwgrond Bouwgrond Bouwgrond Bouwgrond Bouwgrond Bouwgrond Bouwgrond Bouwgrond Bouwgrond Bouwgrond
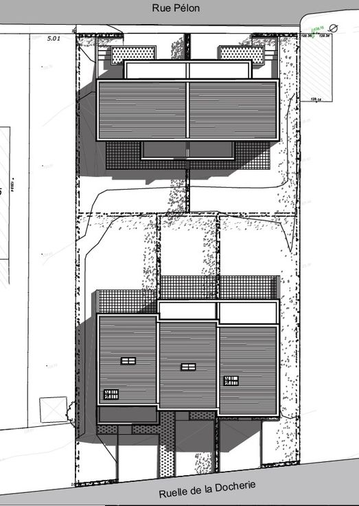
Terrain avec PERMIS ACCEPTE pour 5 habitations sur 2 rues sans issues. IDEAL POUR INVESTISSEURS / ENTREPRENEUR / PROMOTEUR Superficie totale 11a43ca répartit comme suit; Lot 1 & 2 sur la rue du Pelon et lot 3-4-5 Rue du Docteur Moret, à 3,4 Km de l’Hôpital Marie Curie et proximité de l’autoroute. Lot 1 & 2 : 3 Fac de 156m² bâti sur 2a34ca. Rez: garage 22,39 m², hall d'entrée 3,23 m², WC sép, séjour/sàm 27,66 m², cuisine 11,83 m² et buanderie 6,74 m² A l'étage : hall de nuit 6,98 m², Salle de douche/wc 6,42 m² et 3 ch. de 10,53-12,87-13,37m² Lot 3 : 3 Fac 146m² bâti sur 2a56ca. Rez: hall d'entrée 5,48 m², WC sép, vestiaire 5,41 m², buanderie 5,69 m², cuisine 7,93 m² et séjour/sàm de 38,05 m² A l'étage : hall de nuit 6,30 m², WC sép, Salle de bains/douche 5,70 m², 3 ch. 11,85-12,45-12.45m² Lot 4 : 2 Fac 141m² bâti sur 1a81ca. Rez: hall d'entrée 7,87 m2, WC sép, buanderie 6, 11 m 2, cuisine 7,29 m² et séjour/sàm de 39,43 m² A l'étage : hall de nuit 3,87 m², WC sép, Salle de bains/douche 5,46 m² et 3 ch. 11,10-12,45-13,65m² Lot 5 : 3 Fac 145m² bâti sur 2a38ca. Rez: hall d'entrée 5,40 m2, WC sép, vestiaire 5,32 m², buanderie 5,73 m², cuisine 6, 75 m² et séjour/sàm de 39,53 m² A l'étage : hall de nuit 4,41 m², WC sép, salle de bains/douche 7,59 m², 2 ch. de 12 m² et 1 de 13,33 m² Dossier complet, PEB, Essai de Sol disponible sur demande, visite sur RDV lio_cleynen@hotmail.com – 0471/712365 Présence actuellement de 5 box garages loués
Type vastgoed Grond
Prijs 195.000