Te koop Appartementsblok

Beschrijving van   

Vergelijk realty's

Te koop Appartementsblok

Appartementsblok Appartementsblok Appartementsblok
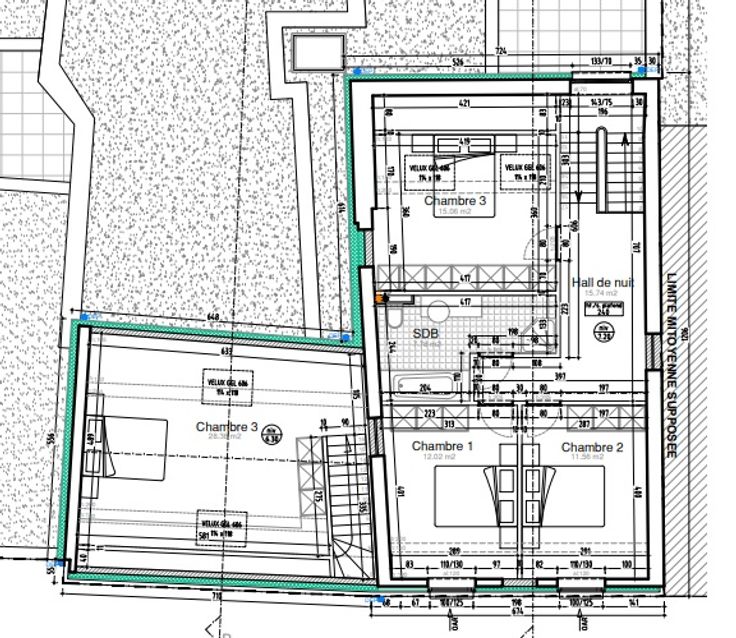
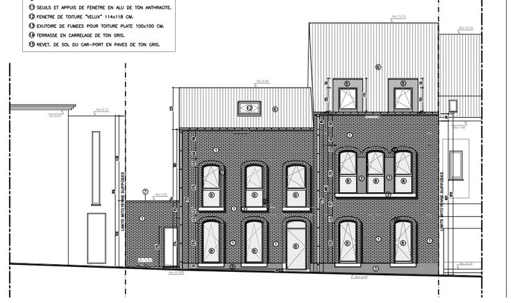
A VENDRE PROJET DE RENOVATION DE DEUX IMMEUBLES DE COMMERCE EN PLEIN CENTRE VILLE AVEC PROJET ACCEPTE POUR 4 APPARTEMENTS 1 appartement 2 chambres + extérieur 1 appartement 3 chambres + extérieur 2 appartements duplex 3 chambres + extérieur Dossier complet disponible (plans, métré, permis,...) Demande au 0498/13.53.32 ou par mail.
Type vastgoed Huis
Prijs 255.000
Aantal slaapkamers 11