Te koop Huis

Beschrijving van   

Vergelijk realty's

Te koop Huis

Huis Huis Huis Huis Huis Huis
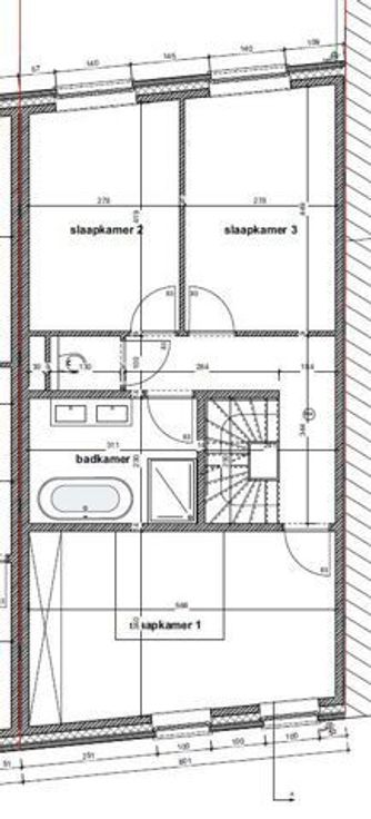
Nieuwbouwwoning in doodlopende straat en op enkele meters van de abdij van Hemiksem. De woning kan naar uw keuze worden afgewerkt volgens het lastenboek. Gelijkvloers: garage, inkomhal, apart toilet, berging, leefruimte met open keuken grenzend aan de tuin met terras. Eerste verdieping: drie slaapkamers, badkamer met ligbad, douche en dubbele lavabo en apart toilet Tweede verdieping: berging en de mogelijkheid tot inrichting van een vierde slaapkamer met douchecel. Verkoop onder BTW (21%) en registratie . Bent u op zoek naar een nieuwbouwwoning in een rustige buurt en op wandelafstand van de fiets- en wandelroutes (Rupel-Schelde) dan is dit zeker voor u.
Type vastgoed Huis
Prijs 425.000
Bewoonbare opp. 215
Aantal slaapkamers 4
Aantal badkamers 1