Te koop Huis

Beschrijving van   

Vergelijk realty's

Te koop Huis

Huis Huis Huis Huis Huis Huis Huis Huis Huis Huis Huis Huis Huis Huis Huis Huis Huis Huis Huis
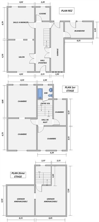
Ideaal gelegen in een rustige straat, op minder dan 5 minuten van het centrum van Andenne en al zijn voorzieningen, ligt dit huis (TE VERNIEUWEN) op +/- 5 are grond op het westen. De begane grond bestaat uit een hal, een ruime woonkamer van ongeveer 38 m², een keuken (in te richten) en een bijkeuken. In de kelder een badkamer met WC. Op de eerste verdieping een nachthal en 4 slaapkamers. Een garage, een kelder en een grote inrichtbare zolder maken de beschrijving compleet. Uitrusting: centrale verwarming op gas; DV raamkozijnen; niet-conforme elektriciteit; kunstleien dak. Mogelijkheid tot verminderde registratierechten (6%)
Type vastgoed Huis
Prijs 120.000
Bewoonbare opp. 163
Aantal slaapkamers 4
Aantal badkamers 1