Te koop Nieuwbouwproject pal in het centrum van Bl...

Beschrijving van   

Vergelijk realty's

Te koop Nieuwbouwproject pal in het centrum van Blankenberge

Nieuwbouwproject pal in het centrum van Blankenberge
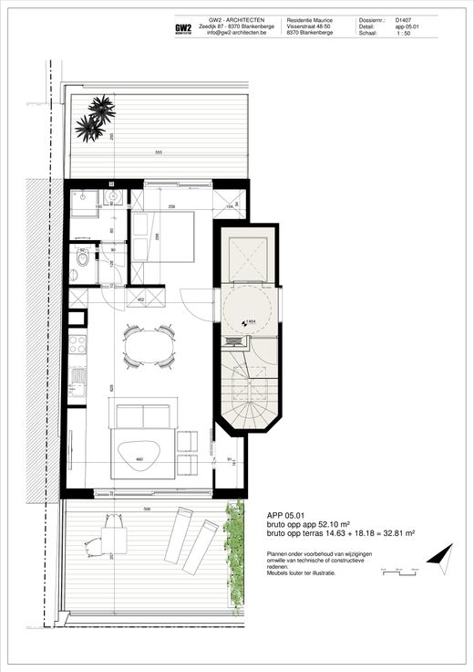
“Maurice” is een hedendaags nieuwbouwproject gelegen te Vissersstraat 48-50, vlakbij de Zeedijk en pal in het commerciële centrum van Blankenberge. De BEN-appartementen in dit project worden gekenmerkt door zeer grote terrassen, brede leefruimtes en grote slaapkamers. De type-verdiepingen bestaan telkens uit twee ruime appartementen met twee slaapkamers en op de vijfde verdieping bevinden zich twee dakappartementen met slaaphoek en fenomenale terrassen. +++ Elk appartement heeft zonnepanelen. +++ Individuele warmtepomp / vloerverwarming. +++ Fietsenberging. +++ Vuilnislokaal. +++ Autostandplaatsen in de onmiddellijke buurt. +++ Veel bergruimte: ruime berging in het appartement + buitenberging op het terras + mogelijkheid aanschaffen extra berging op het gelijkvloers.
Type vastgoed Appartement
Prijs Op aanvraag
Bewoonbare opp. 85
Aantal slaapkamers 1
Aantal badkamers 1