Te koop UNIEKE KANS!! MODERNE VRIJSTAANDE VILLA op TOPLIGGING!
Deze ZEER MODERN OGENDE vrijstaande nieuwbouwwoning is gelegen op een TOPLIGGING, dit op 1,5km van de binnenstad, op wandelafstand van het AZ Sint-Lucas, de kinderboerderij, de Zeventorentjes, bos, openbaar vervoer, ... . Door zijn STRAKKE VORMGEVING en MOOIE GLASPARTIJEN beschikt deze woning over ZEER MOOIE WOONRUIMTES met telkens een MAXIMALE LICHTINVAL! Ook is deze woning ZEER ENERGIEZUINIG door de aanwezigheid van vloerverwarming (glvl + verdieping), warmtepomp en zonnepanelen!
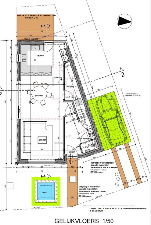
Op het gelijkvloerse is er de inkomhal met gastentoilet, lichtrijke woonkamer, open ingerichte keuken en praktische berging.
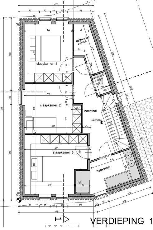
De verdieping omvat een nachthal, 2e afzonderlijk toilet, technische ruimte/berging, een ingerichte badkamer en 3 mooie slaapkamers.
Deze woning wordt omringd door een gezellige ZUIDOOST-gerichte tuin, met AUTOSTAANPLAATS EN TUINBERGING!
Verkoop onder BTW-stelsel.
UNIEKE KANS!!
Renovatieplicht: onbekend