Te koop Bouwgrond voor open bebouwing

Beschrijving van   

Vergelijk realty's

Te koop Bouwgrond voor open bebouwing

Bouwgrond voor open bebouwing Bouwgrond voor open bebouwing Bouwgrond voor open bebouwing
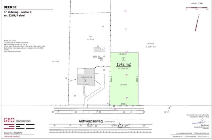
Ideaal gelegen ruime bouwgrond op een perceel van 1.342m² voor open bebouwing. Deze bouwgrond is in een mooie groene, natuurlijke omkadering gelegen Straatbreedte vooraan 27m - tuinbreedte achteraan 26,69m - diepte 50m Achter de bouwgrond bevindt zich agrarische gebied (mogelijkheid tot aankoop tuingrond achtergelegen gebied aan € 20/m²) Het agrarisch landelijk gebied met vooraan uitzicht op de bossen vormt een natuurgebonden waardevermeerdering voor dit woongedeelte. Deze groene zone en de zogenaamde "oude groene boulevard" richting Vlimmeren bleven immers bewaard. De bouwgrond bevindt zich op zo'n 2km van Beerse centrum en is commercieel zeer gunstig gesitueerd langs de gewestelijke, economisch interessante verkeersader Turnhout-Antwerpenverbinding met de E34. P score: D
Type vastgoed Grond
Prijs 260.000