Te koop Huis

Beschrijving van   

Vergelijk realty's

Te koop Huis

Huis Huis Huis Huis Huis
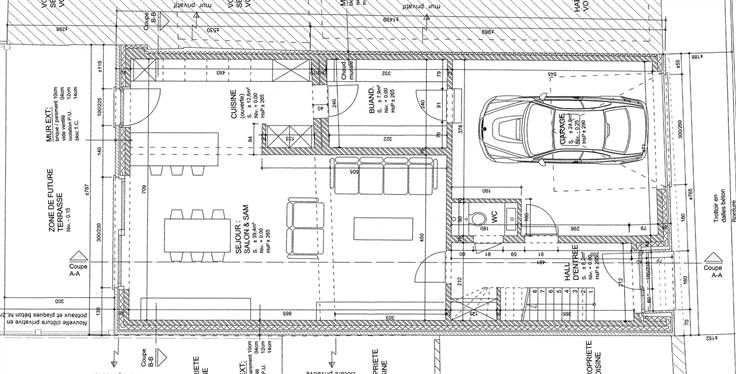
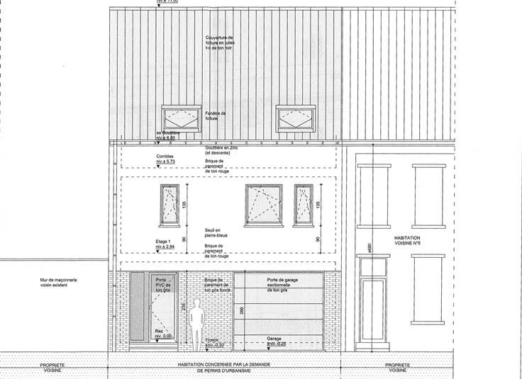
Sorry er is geen nederlandse vertaling beschikbaar. Maison 2 façades en gros oeuvre couvert fermé. Rez: Hall d'entrée, WC séparé, living, cuisine, buanderie, garage. Etage: Hall de nuit, salle de bain, 3 chambres. Divers: Châssis double vitrage PVC ton GRIS. VENTE sous régime TVA 21 %. PEB: PEB à la construction à respecter selon les normes dans permis. Possibilité de remise d'un devis pour les finitions intérieures. Prix: 185.000 euros, y compris les frais d'agence et HORS TVA 21 %.
Type vastgoed Huis
Prijs 185.000
Bewoonbare opp. 150
Aantal slaapkamers 3
Aantal badkamers 1