Te koop Verkaveling Berten Pilstraat

Beschrijving van   

Vergelijk realty's

Te koop Verkaveling Berten Pilstraat

Verkaveling Berten Pilstraat Verkaveling Berten Pilstraat Verkaveling Berten Pilstraat Verkaveling Berten Pilstraat Verkaveling Berten Pilstraat Verkaveling Berten Pilstraat Verkaveling Berten Pilstraat Verkaveling Berten Pilstraat Verkaveling Berten Pilstraat
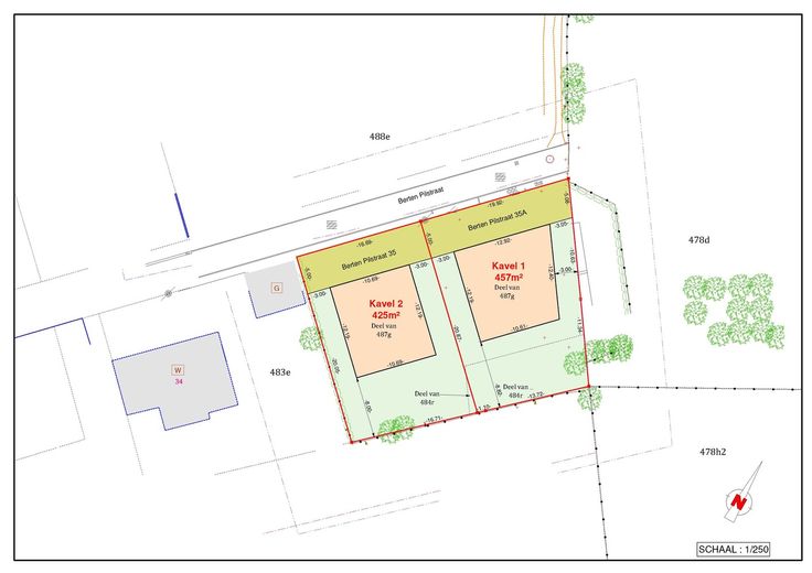
NIEUW PROJECT TE KOOP IN ZONNEBEKE Op het einde van een doodlopend stuk van de Berten Pilstraat in Zonnebeke bieden we 2 loten te koop aan met een prachtig verzicht over de vele velden in de omgeving. Landelijke of moderne architectuur De bouwgrond van lot 2 meet 425 m² en wordt te koop aangeboden met ofwel een moderne of landelijke woning, waarbij je als koper de binnenafwerking nog mee kan kiezen. Lot 1 wordt dan weer aangeboden met onze Bouwen Op Maat formule waarbij je als koper zelf inspraak hebt in het ontwerp van de woning. Bovendien bestaat lot 1 uit een gedeelte bouwgrond van  457 m² met een naastgelegen weide van maar liefst 3300 m². In totaliteit een oppervlakte van 3757 m²! Ideaal voor mensen die graag veel open ruimte wensen of bijvoorbeeld een paard bij huis willen hebben. Pluspunten in dit project zijn zeker de rustige ligging met open zicht, de energiezuinige BEN-woningen en uiteraard de vele keuzemogelijkheden als koper. Heeft u interesse in deze nieuwbouwwoningen in Zonnebeke? Contacteer ons voor meer informatie!
Type vastgoed Huis
Prijs Op aanvraag