Te koop Bouwgrond voor open bebouwing op 748m2

Beschrijving van   

Vergelijk realty's

Te koop Bouwgrond voor open bebouwing op 748m2

Bouwgrond voor open bebouwing op 748m2 Bouwgrond voor open bebouwing op 748m2 Bouwgrond voor open bebouwing op 748m2 Bouwgrond voor open bebouwing op 748m2 Bouwgrond voor open bebouwing op 748m2 Bouwgrond voor open bebouwing op 748m2 Bouwgrond voor open bebouwing op 748m2
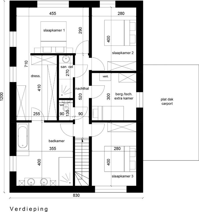
Ontdek dit stuk grond, gelegen te Pullaarsteenweg. Ideaal om uw droomwoning (open bebouwing) hier te bouwen. Deze bouwgrond is 748m2 . Ook bieden wij hier een prachtig projectie op aan. Het is gelegen in een rustige en goed bereikbare buurt, nabij N16 en A12. Voor meer informatie kan u ons uiteraard contacteren via het nummer: 052/46.38.03 of via de website.
Type vastgoed Grond
Prijs 609.000