Te koop Huis

Beschrijving van   

Vergelijk realty's

Te koop Huis

Huis Huis Huis Huis Huis Huis Huis Huis Huis Huis Huis Huis Huis Huis Huis Huis Huis Huis Huis Huis Huis
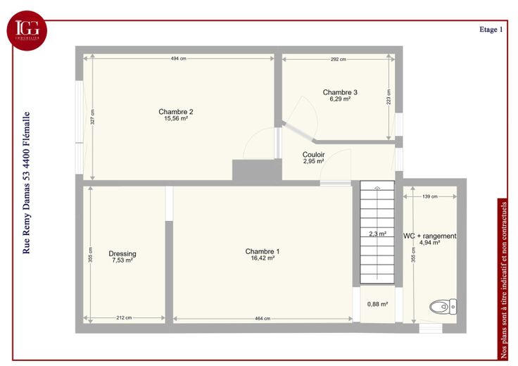
IGG IMMOBILIER à le plaisir de vous présenter cette magnifique maison 4 façades située sur la commune de Mons-lez-Liège (Flémalle). Entièrement rénovée en 2018, elle se compose comme suit : Au RDC: un beau et grand séjour avec coin salle à manger ouvert sur une belle cuisine équipée, une salle de bain. Au 1er Une grande chambre parentale de 28.89m² avec dressing, coin toilette et rangement, une seconde chambre de 15,59m² et une troisième chambre d'enfant de 6.29m². La maison dispose également de caves aménagées avec coin buanderie, un garage, un emplacement de parking, un passage latéral et un grand jardin. Chauffage central au mazout, unité d'air conditionné dans le salon et la chambre parentale, installation de panneaux photovoltaïques, adoucisseur d'eau, alarme, châssis double vitrage PVC placés en 2020 avec volets et moustiquaires, citerne de récupération d'eau de pluie. Electricité conforme, PEB G, RC: 790€ Rénovée en 2018, cette maison n'attends plus que vos meubles pour être aménagée. Coup de coeur assuré ! Infos et visites 0489/84 99 99 ou contact@igg.immo
Type vastgoed Huis
Prijs Op aanvraag
Bewoonbare opp. 110
Aantal slaapkamers 3