Te koop Maison 4 façade - 4900 ON

Beschrijving van   

Vergelijk realty's

Te koop Maison 4 façade - 4900 ON

Maison 4 façade - 4900 ON Maison 4 façade - 4900 ON Maison 4 façade - 4900 ON Maison 4 façade - 4900 ON Maison 4 façade - 4900 ON Maison 4 façade - 4900 ON Maison 4 façade - 4900 ON Maison 4 façade - 4900 ON Maison 4 façade - 4900 ON Maison 4 façade - 4900 ON Maison 4 façade - 4900 ON
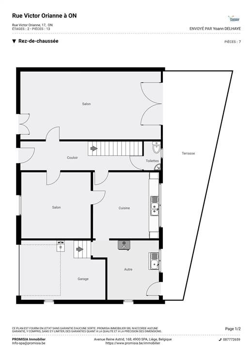
4-gevelwoning met tuin en garage - Rue Victor Orianne in ON. Bestaat als volgt: Souterrain: Kelders [beton]. Begane grond: woon-/eetkamer [±8,3x4,0; tegels; cassette], entreehal [± 7,2x1,7; betegeling], separaat toilet [± 1,6x1,0; tegels; wastafel en toegang tot kelders], ingerichte keuken [± 3.9x3.9; tegels; meubilair, houtkachel], wasruimte [± (3,5x3,0)+1m²; tegels; MàL en SL aansluiting], woonkamer [± 4,1x3,9; tegels], garage [ ± 3,5x4,7; concreet ; elektrisch rolluik], terras [±m²; tegelwerk], tuinen, zijoprit. 1e verdieping: Nachthal [± 1,7x8,2; vinyl op vloer], badkamer [± 3,9x2,6; vinyl op vloer; WC, bidet, wastafel, ligbad], berging [± 3,9x1,2], slaapkamer voorzijde 1 [± 3,9x4,2; vinyl op vloer], slaapkamer voorzijde 2 [± 4.0x4.0; vinyl op vloer], slaapkamer achterzijde [± 4.0x4.15; vinyl op vloer], zolder [± 3,5x7,8; vinyl op vloer; toegang via de garage en OLIEtank]. 2e verdieping: Zolder. Kenmerken van het pand: Warmwater- en verwarmingsproductie via oliegestookte DC [1500L tank]; PVC kozijnen en rolluiken met dubbele beglazing op de begane grond; Alarm, zonwering; Woonoppervlakte [PEB]: 238m²; RC: € 877,00; PEB F - 20230830008850 - Espec: 457kWh/m².jaar - Etot: 15458kWh/jaar - CO2: 113kg CO2/m².jaar. Voor vragen en/of bezoeken kunt u contact opnemen met het kantoor op 087/77.26.59.
Type vastgoed Huis
Prijs 299.000
Bewoonbare opp. 238
Aantal slaapkamers 3
Aantal badkamers 1