Te koop Nieuw te bouwen woning te Roeselare

Beschrijving van   

Vergelijk realty's

Te koop Nieuw te bouwen woning te Roeselare

Nieuw te bouwen woning te Roeselare Nieuw te bouwen woning te Roeselare Nieuw te bouwen woning te Roeselare Nieuw te bouwen woning te Roeselare
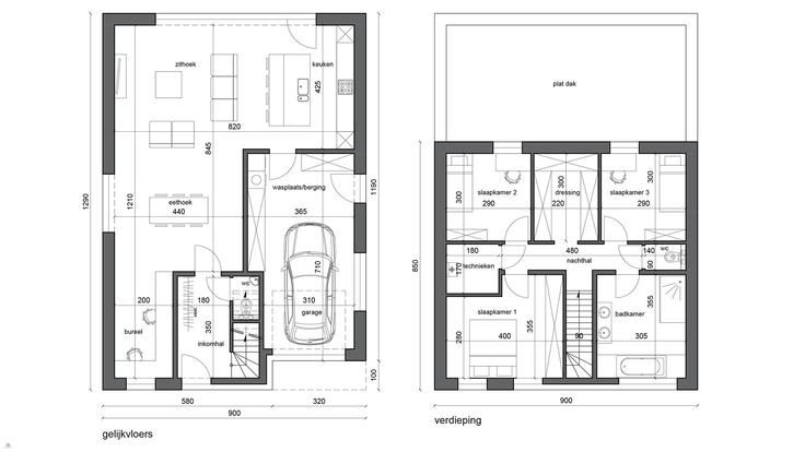
Nieuw te bouwen open bebouwing te Roeselare. Voorbeeldwoning: indeling vrij te kiezen.Onze woningen worden afgewerkt met standaard duurzame kwalitatieve materialen waarvoor ruime budgetten worden voorzien.Als bouwheer heeft u volledige inspraak gaande van bouwstijl, materialen en afwerking. Zo kunnen we u steeds een perfect beeld geven van de kostprijs rekening houdend met uw vooropgestelde budgetPrijs grond met voorgestelde voorbeeldwoning incl. btw, registratierechten, architectenereloon, EPB, veiligheidcoordinatie, blowerdoortest, en keuring riolering.Ventilatiesysteem D met warmterecuperatieZonnepanelen voorzien in de prijs, volgens voorstudie EPB-verslagWoning vrij te kiezen na afspraak met architect.Meer info en lastenboek zijn teverkrijgen op kantoor of bij afspraak. Aarzel niet ons te contacteren.Bouwen met meerwaarde doe je met NB-ProjectsBel 053/89.35.95of e-mail naar info@nb-projects.be------
Type vastgoed Huis
Prijs 586.962
Bewoonbare opp. 189
Aantal slaapkamers 3
Aantal badkamers 1