Te koop 2 slpk., oostterras, veel privacy, haast t...

Beschrijving van   

Vergelijk realty's

Te koop 2 slpk., oostterras, veel privacy, haast temidden van bossen

2 slpk., oostterras, veel privacy, haast temidden van bossen 2 slpk., oostterras, veel privacy, haast temidden van bossen
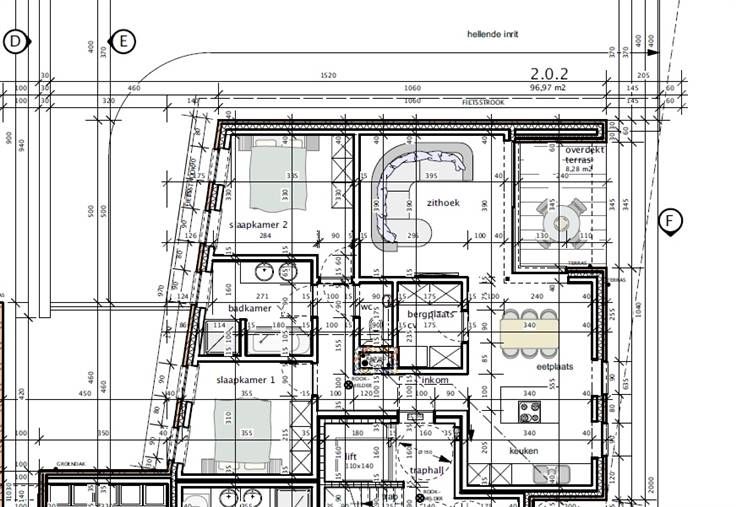
Laatste appartement 2.0.2 in residentie Paulushof. Het gaat om een gelijkvloers appartement met veel privacy, dat heel rustig gelegen is, grenzend aan natuurgebied aan de rechterkant en met oostgericht overdekt terras. Vlakbij het domein van de Vijvers met brasserie De Vijvers, sterrenrestaurant Colette, maar ook temidden van prachtige wandel- en fietsomgeving. Je woont als het ware temidden van de natuur. Het appartement zelf is 97m², het oostgerichte terras is 8m² en de lichte leefruimte met open keuken en aparte zithoek 38m², De slaapkamers zijn beide voor dubbel bed (13 en 11m²) en de badkamer is voorzien van ligbad en douche. Met comfortabele berging in het appartement. Voor dit appartement betaal je incl. registratiekosten, notariskosten en BTW, alsook overdekte autostaanplaats en kelderberging + aansluitkosten voorbereiding plaatsing laadpaal zo'n 392.000 euro. Verdere detailinfo op www.immolissens.be of na afspraak op ons kantoor.
Type vastgoed Appartement
Prijs 325.000
Bewoonbare opp. 101
Aantal slaapkamers 2
Aantal badkamers 1