Te koop VERKOOP ONDER STELSEL VERKOOPRECHTEN!

Beschrijving van   

Vergelijk realty's

Te koop VERKOOP ONDER STELSEL VERKOOPRECHTEN!

VERKOOP ONDER STELSEL VERKOOPRECHTEN! VERKOOP ONDER STELSEL VERKOOPRECHTEN! VERKOOP ONDER STELSEL VERKOOPRECHTEN! VERKOOP ONDER STELSEL VERKOOPRECHTEN! VERKOOP ONDER STELSEL VERKOOPRECHTEN! VERKOOP ONDER STELSEL VERKOOPRECHTEN! VERKOOP ONDER STELSEL VERKOOPRECHTEN! VERKOOP ONDER STELSEL VERKOOPRECHTEN! VERKOOP ONDER STELSEL VERKOOPRECHTEN! VERKOOP ONDER STELSEL VERKOOPRECHTEN! VERKOOP ONDER STELSEL VERKOOPRECHTEN! VERKOOP ONDER STELSEL VERKOOPRECHTEN! VERKOOP ONDER STELSEL VERKOOPRECHTEN! VERKOOP ONDER STELSEL VERKOOPRECHTEN!
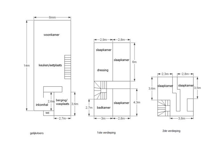
BEN-nieuwbouwwoning met 5 slaapkamers te Lede! VERKOOP ONDER STELSEL VERKOOPRECHTEN Bent u op zoek naar een energiezuinige nieuwbouwwoning (bouwjaar 2023) met keuze voor kwaliteitsvolle materialen volgens de nieuwste energienormen, dan zal dit pand u zeker aanspreken! De woning beschikt op het gelijkvloers over een ruime inkomhal met gastentoilet, een royale en lichtrijke leefruimte met een volledig ingerichte open keuken incl. kookeiland. Grenzend aan de keuken vindt men nog een ruime berging/wasplaats. Op de 1ste verdieping bevinden zich 3 volwaardige slaapkamers en een luxueuze badkamer. Op de bovenste verdieping (vaste trap) vindt men nog 2 extra slaapkamers en een technische ruimte. Achteraan bevindt zich de zonnige, ruime tuin! Er is tevens een ruime oprit aanwezig die plaats biedt voor 3 wagens.  Deze unieke woning beschikt over 8 zonnepanelen, een warmtepomp (lucht-water) en ventilatiesysteem (C+) wat bijdraagt aan de energiezuinigheid. Een extra troef is dat deze woning modulair gebouwd is, wat het mogelijk maakt om de gehele indeling te wijzigen aangezien er binnenin geen draagmuren aanwezig zijn. Deze eigendom bevindt zich in het rustige Oordegem, een deelgemeente van Lede doch nabij belangrijke invalswegen (E40 Aalst - Wetteren). Lede heeft tevens goede verbindingen met het openbaar vervoer (incl. trein- en busverbindingen).  Voor meer informatie en/of een bezoek, contacteer Ineke via ineke@immotijl.be of 0472 09 01 51.
Type vastgoed Huis
Prijs 599.000
Bewoonbare opp. 223
Aantal slaapkamers 5
Aantal badkamers 1