Te koop Nieuw te bouwen woning te Serskamp

Beschrijving van   

Vergelijk realty's

Te koop Nieuw te bouwen woning te Serskamp

Nieuw te bouwen woning te Serskamp Nieuw te bouwen woning te Serskamp Nieuw te bouwen woning te Serskamp Nieuw te bouwen woning te Serskamp
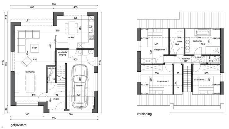
Nieuw te bouwen open bebouwing te Serskamp. Voorbeeldwoning: indeling vrij te kiezen.Onze woningen worden afgewerkt met standaard duurzame kwalitatieve materialen waarvoor ruime budgetten worden voorzien.Als bouwheer heeft u volledige inspraak gaande van bouwstijl, materialen en afwerking. Zo kunnen we u steeds een perfect beeld geven van de kostprijs rekening houdend met uw vooropgestelde budgetPrijs grond met voorgestelde voorbeeldwoning incl. btw, registratierechten, architectenereloon, EPB, veiligheidcoordinatie, blowerdoortest, en keuring riolering.Ventilatiesysteem D met warmterecuperatieZonnepanelen voorzien in de prijs, volgens voorstudie EPB-verslagWoning vrij te kiezen na afspraak met architect.Meer info en lastenboek zijn teverkrijgen op kantoor of bij afspraak. Aarzel niet ons te contacteren.Bouwen met meerwaarde doe je met NB-ProjectsBel 053/89.35.95of e-mail naar info@nb-projects.be------
Type vastgoed Huis
Prijs 592.297
Bewoonbare opp. 165
Aantal slaapkamers 3
Aantal badkamers 1