Te huur Gerenoveerde winkelruimte gelegen op de BO...

Beschrijving van   

Vergelijk realty's

Te huur Gerenoveerde winkelruimte gelegen op de BONDGENOTENLAAN, Le

Gerenoveerde winkelruimte gelegen op de BONDGENOTENLAAN, Le Gerenoveerde winkelruimte gelegen op de BONDGENOTENLAAN, Le Gerenoveerde winkelruimte gelegen op de BONDGENOTENLAAN, Le Gerenoveerde winkelruimte gelegen op de BONDGENOTENLAAN, Le Gerenoveerde winkelruimte gelegen op de BONDGENOTENLAAN, Le Gerenoveerde winkelruimte gelegen op de BONDGENOTENLAAN, Le Gerenoveerde winkelruimte gelegen op de BONDGENOTENLAAN, Le
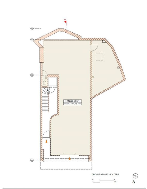
In het bruisende centrum van Leuven, in de buurt van de Grote Markt, vindt u dit prachtig handelspand. Deze ruimte is gelegen in een historisch pand en biedt een unieke mix van winkelruimte en andere commerciële mogelijkheden, evenals luxueuze woonruimtes. De winkelruimte in residentie BOND2 is onlangs gerenoveerd in 2024 en biedt een modern en stijlvol interieur dat perfect aansluit bij de sfeer van de omgeving. Met een perceeloppervlakte van 114.00 vierkante meter is er voldoende ruimte voor diverse commerciële activiteiten, zoals een boetiek, een galerie of een trendy café. De oppervlakte van 114.00 vierkante meter biedt ruimte voor creatieve en innovatieve ondernemers die op zoek zijn naar een unieke en levendige locatie voor hun bedrijf. De ligging in het hart van Leuven zorgt voor een constante stroom van potentiële klanten en bezoekers, waardoor het een ideale locatie is voor ondernemers die willen profiteren van de levendigheid en dynamiek van de stad. Kortom, de winkelruimte en andere commerciële mogelijkheden bieden een unieke kans voor ondernemers die op zoek zijn naar een levendige en inspirerende locatie voor hun bedrijf. Met zijn gerenoveerde interieur, ruime oppervlakte en centrale ligging is dit de perfecte plek om uw commerciële dromen waar te maken.
Type vastgoed Commercieel
Prijs 4.000
Bewoonbare opp. 100