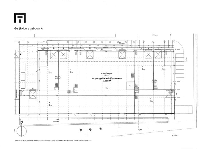
Te koop Nieuwe kmo-unit van 544m²in Heist-Op-Den-Berg

Beschrijving van   

Vergelijk realty's

Te koop Nieuwe kmo-unit van 544m²in Heist-Op-Den-Berg

Nieuwe kmo-unit van 544m²in Heist-Op-Den-Berg Nieuwe kmo-unit van 544m²in Heist-Op-Den-Berg Nieuwe kmo-unit van 544m²in Heist-Op-Den-Berg Nieuwe kmo-unit van 544m²in Heist-Op-Den-Berg
Ontdek Heidelo-park: de perfecte nieuwbouw kmo-units in Heist op den Berg. Ben je op zoek naar een moderne en multifunctionele bedrijfsruimte die jouw bedrijf naar nieuwe hoogten zal tillen? Zoek niet verder! Welkom bij Heidelo-Park, het nieuwste paradepaardje van Heist-op-den-Berg, waar zakelijke dromen werkelijkheid worden. Heidelo-Park biedt een unieke kans voor ondernemers die streven naar groei en succes. Deze KMO units zijn ontworpen met het oog op efficiëntie, flexibiliteit en comfort, zodat jij je kunt concentreren op wat echt belangrijk is: jouw bedrijf laten groeien. Meer ruimte nodig? Geen probleem! De units zijn uitbreidbaar en combineerbaar. Waarom kiezen voor Heidelo-Park? Top locatie: Gelegen in het bruisende Heist-op-den-Berg, waar je profiteert van een strategische ligging die uitstekende bereikbaarheid biedt voor zowel klanten als leveranciers. Moderne infrastructuur: Deze KMO units zijn voorzien van state-of-the-art faciliteiten en hoogwaardige afwerkingen, zodat je kunt werken in een inspirerende en professionele omgeving. Flexibele Ruimtes: Of je nu behoefte hebt aan een kleine werkplaats, een ruim kantoor of een combinatie van beide, bij Heidelo vind je de perfecte ruimte die aan jouw specifieke behoeften voldoet. Toekomstgericht Ontwerp: We begrijpen dat bedrijven evolueren, daarom hebben we gezorgd voor flexibiliteit in ons ontwerp, zodat je gemakkelijk kunt aanpassen en uitbreiden naarmate jouw bedrijf groeit.
Type vastgoed Commercieel
Prijs 840.500
Bewoonbare opp. 544