Te koop Huis

Beschrijving van   

Vergelijk realty's

Te koop Huis

Huis Huis Huis Huis Huis Huis Huis Huis Huis
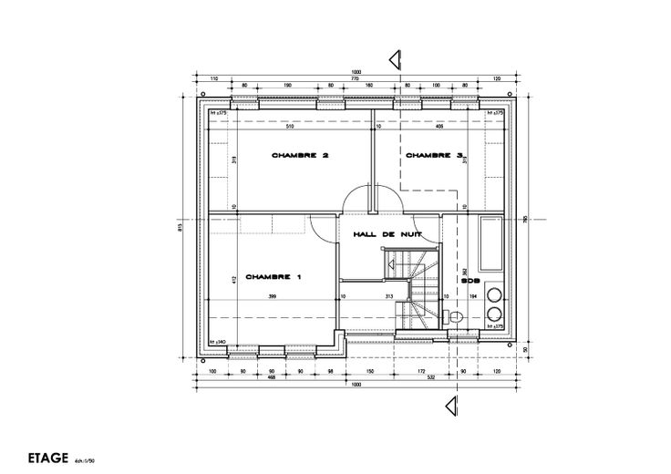
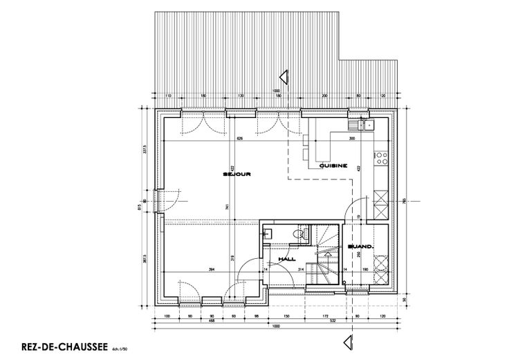
Nous vous présentons le terrain idéal afin d'y bâtir votre projet de construction de rêve ! Celui-ci se retrouve dans un cadre très campagnard et plaisant tout en étant situé dans le beau village de Purnode. Ce terrain va vous permettre de bénéficier de 30 mètres de façade et de 44 mètres de profondeur. Quant à sa localisation, elle va vous ravir car en effet, vous allez pouvoir retrouver certains commerces tels que des restaurants, des supermarchés et des pompes à essence qui sont situés à seulement 10 minutes de l'emplacement du terrain. La E411, quant à elle, se trouve à 7 minutes ce qui va vous permettre de rejoindre rapidement la belle ville de Namur. Nous vous proposons un projet de construction de 150 m² composé comme suit : Au rez-de-chaussée, vous retrouverez un séjour lumineux avec une cuisine ouverte, une buanderie ainsi qu'un hall d'entrée et un WC. Un hall de nuit, se trouvant à l'étage, est composé d'un hall de nuit, d'une salle de bain et de 3 belles chambres. Le projet est entièrement modulable et personnalisable en fonction de vos envies et de vos désirs. Le projet + le terrain pour le prix de 291.753,00 € HTVA et frais d'architecte. Le prix est à titre indicatif et pourra être modifié en raison de la personnalisation du projet. Pour plus d'informations, nous restons disponibles durant les heures de bureau.
Type vastgoed Huis
Prijs 291.753
Bewoonbare opp. 150
Aantal slaapkamers 3
Aantal badkamers 1