Te koop Huis

Beschrijving van   

Vergelijk realty's

Te koop Huis

Huis Huis Huis Huis Huis Huis Huis Huis Huis Huis Huis Huis
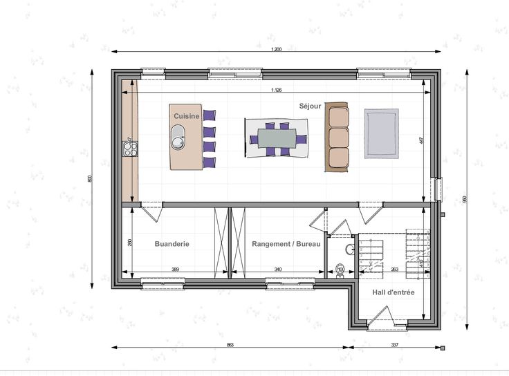
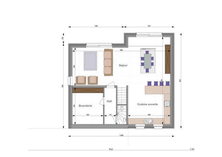
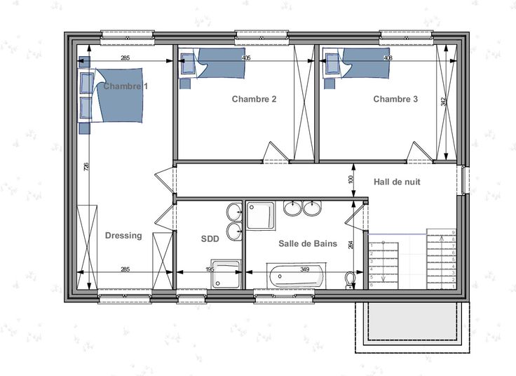
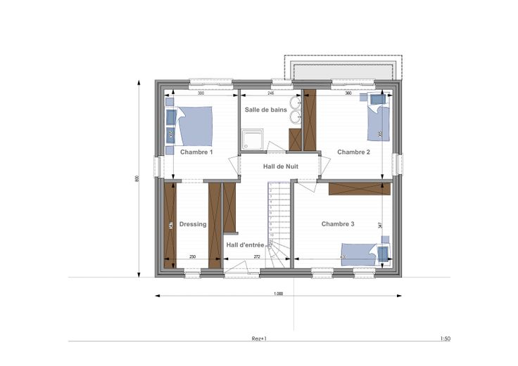
Laissez-vous séduire par ce nouveau projet d'une construction 4 façades dans le charmant village de Florrifoux sur un terrain doté d'une superficie de 876 m². De par sa situation idéale, proche de Suarlée et de Temploux, vous profiterez pleinement de votre construction en toute tranquillité. Maisons Compère vous propose une construction 4 façades +- 180 m² composé comme suit : Au rdc, se trouve, une buanderie, un bureau, un grand séjour et une cuisine. L'étage est composé de 3 chambres et 2 sdb Prix du terrain + la construction : 385.000.00 € HTVA. D'autres lots sont disponibles :• Lot 1 surface habitable de 200m² - superficie terrain de 814 m² - VENDU. • Lot 2 surface habitable de 190m² - superficie de terrain de 903 m² - au prix de 390.000,00 € htva. • Lot 3 surface habitable de 190m² - superficie de terrain de 873 m² - au prix de 385.000,00 € htva VENDU Lot 4 VENDU • Lot 6 surface habitable de 170m² - superficie de terrain de 895 m² - au prix de 385.000,00 € htva • Lot 7 surface habitable de 180m² - superficie de terrain de 1.049 m² - au prix de 390.000,00 € htva.VENDU Pour ce projet !! MAISONS COMPÈRE VOUS OFFRE 10 PANNEAUX PHOTOVOLTAÏQUES !! Intéressé par ce projet ? Monsieur Mariani reste joignable au 0475/23.62.76 Le prix indiqué est ferme, définitif et sans indexation, les images sont non contractuelles.
Type vastgoed Huis
Prijs 390.000
Bewoonbare opp. 170
Aantal slaapkamers 3
Aantal badkamers 1