Te koop Huis

Beschrijving van   

Vergelijk realty's

Te koop Huis

Huis Huis Huis Huis Huis Huis Huis Huis Huis Huis Huis Huis Huis Huis Huis Huis Huis Huis Huis Huis Huis Huis Huis Huis Huis
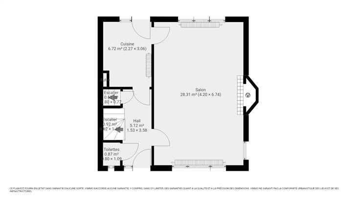
Sorry er is geen nederlandse vertaling beschikbaar. !!! SOUS COMPROMIS DE VENTE !!! La Signature Immobilière vous présente cette maison 3 façades à rénover dans un quartier calme et prisé de Grivegnée - Cette habitation 3 chambres dispose d'un garage et d'un spacieux jardin - Elle se compose comme suit : REZ-DE-CHAUSSÉE : Hall d'entrée avec toilette indépendante - Séjour de 28 m² - Cuisine donnant accès à une terrasse - PREMIER ÉTAGE : Hall de nuit - Chambre 1 (17m²) - Chambre 2 (12m²) - Chambre 3 (7m²) - SOUS-SOL : Garage de 28m² - Caves - Buanderie - DIVERS : Agréable jardin de +- 400m² - Chauffage central mazout - Châssis simple vitrage bois - Électricité non conforme - RC: 743€ - PEB : G n°20240314020610 - Pour plus de renseignements,n'hésitez pas à nous joindre au 04/223.30.30.
Type vastgoed Huis
Prijs 229.000
Bewoonbare opp. 100
Aantal slaapkamers 3
Aantal badkamers 1