Te koop Huis

Beschrijving van   

Vergelijk realty's

Te koop Huis

Huis Huis Huis Huis Huis Huis Huis Huis Huis Huis Huis Huis Huis
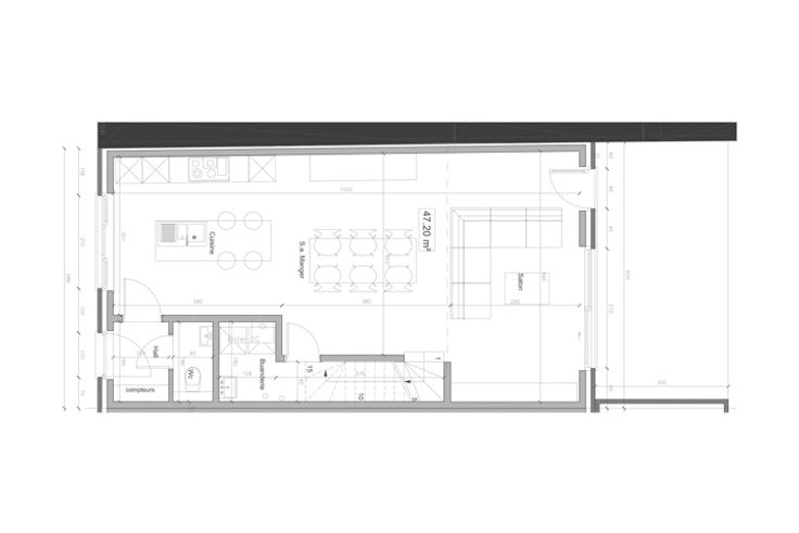
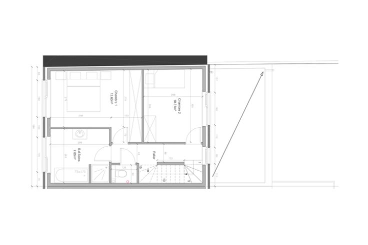
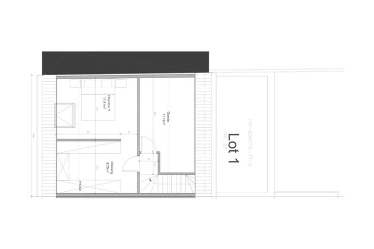
Maison 3 chambres avec jardin et garage, à deux pas de la place et des commerces. Caractéristiques générales : hall d'entrée, wc séparé avec lave-mains, séjour avec espace cuisine ouvert (cuisine non comprise), buanderie. Au 1er étage, 2 chambres, salle de bains avec douche, baignoire, meuble vasque, WC séparé sur le palier. Sous combles, 1 chambre, espace dressing et coin grenier. Jardin clôturé, terrasse carrelée, portillon et garage Caractéristiques techniques : châssis PVC noir double-vitrage, seuils en pierre bleue, porte d’entrée en PVC noir, porte de garage basculante noire, portes intérieures prêtes à peindre avec clinches en inox, tablettes de fenêtre en marbre blanc ou en pierre bleue adoucie avec contre bord, escalier en hêtre, chauffage central au gaz, chaudière avec boiler séparé, radiateurs, thermostat, VMC double flux, carrelage dans la pièce de vie et dans la salle de bain avec plinthes assorties, faïences autour de la baignoire ainsi que dans la douche avec plinthes assorties, parquet dans les chambres, clôtures mitoyennes, jardin non engazonné, tout à l'égoût, puit de contrôle, siphon à cloche, citerne de récupération d’eau de pluie de 10.000 litres (pompe électrique placée), 5 panneaux solaires, accès au garage en pavés autobloquants 8.000 € HTVA offerts pour l’achat d’une cuisine chez Vervenne ! PEB visé : A Livraison prévue 1er trimestre 2025 Prix affichés hors frais - Vente sous régime des droits d'enregistrement 12,5% sur le terrain et TVA 21% sur la co
Type vastgoed Huis
Prijs 313.000
Bewoonbare opp. 154
Aantal slaapkamers 3
Aantal badkamers 1