Te koop Huis

Beschrijving van   

Vergelijk realty's

Te koop Huis

Huis Huis Huis Huis Huis Huis Huis Huis Huis Huis Huis Huis Huis Huis Huis Huis Huis Huis Huis Huis Huis Huis Huis Huis
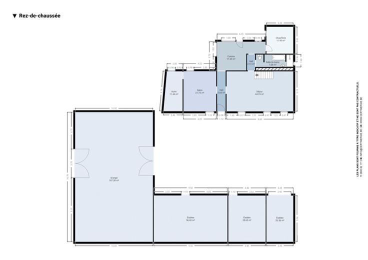
Réf.: 99. Beau corps de ferme en carré sur 20 ares avec étable et grange à rénover situé dans un coin très calme au cœur du village (rue en cul de sac)! La maison se compose au rez-de-chaussée: d'un hall d'entrée, un salon et une salle à manger, une chambre, un bureau, un grand living, une salle de bain, un espace cuisine et une chaufferie. A l'étage : un hall de nuit et 3 chambres (belle charpente apparente). A l'extérieur: grande cour à l'avant permettant le stationnement de plusieurs véhicules et un jardin. La grande dispose d'une surface au sol de 167 m2 et les étables de 105 m2! A VISITER SANS TARDER! Faire offre à partir de 185.000,00€. CONTACTEZ ROBERTO AU 0499.924.999. Informations communiquées à titre indicatif et non contractuel. Les propriétaires se réservent le droit d'apprécier la hauteur et la qualité des offres. Nous sommes constamment à la recherche de nouveaux biens pour nos clients en attente, n'hésitez pas à nous contacter au 0499 924 999 pour UNE ESTIMATION GRATUITE SOUS 48H ET FAITE PAR LE PATRON EN PERSONNE. Concernant le choix de l'acquéreur; les critères de sélection du propriétaire ne sont pas uniquement le prix. Le choix reste à l'appréciation de ce dernier qui seul en décidera.
Type vastgoed Huis
Prijs 185.000
Bewoonbare opp. 220
Aantal slaapkamers 4
Aantal badkamers 1