Te koop Bouwgrond

Beschrijving van   

Vergelijk realty's

Te koop Bouwgrond

Bouwgrond Bouwgrond Bouwgrond Bouwgrond Bouwgrond Bouwgrond Bouwgrond Bouwgrond Bouwgrond
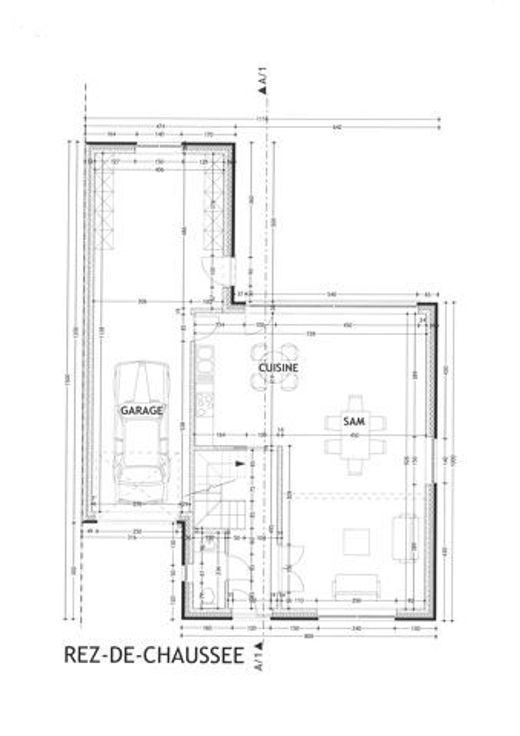
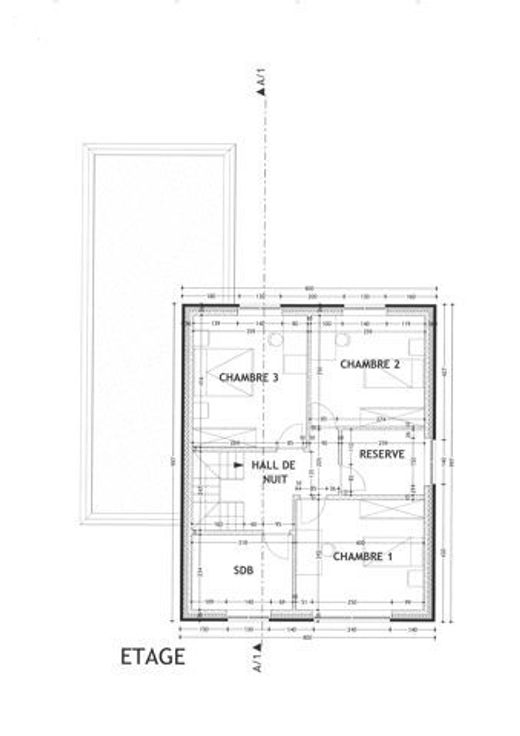
Votre agence IMMO CHRONO vous propose en exclusivité ce superbe terrain à bâtir situé dans un quartier résidentiel très prisé. Un permis a été octroyé pour la construction d'une magnifique villa 4 façades composée comme suit : hall d'entrée, WC séparé, spacieux living, cuisine ouverte sur le séjour, un garage avec un espace buanderie/cellier. L'étage comprend : un hall de nuit, 3 chambres et une salle de bain. Permis, plans, dossier PEB, essai de sol disponibles en agence sur rendez-vous. Libre de construction. Faire offre à partir de 149.000,00 € (sous réserve d'acceptation des propriétaires). Publicité à caractère non contractuel et ne constituant pas une offre.
Type vastgoed Grond
Prijs 149.000