Te koop Nieuwe moderne verkaveling op 1,5km van he...

Beschrijving van   

Vergelijk realty's

Te koop Nieuwe moderne verkaveling op 1,5km van het dorpscentrum!

Nieuwe moderne verkaveling op 1,5km van het dorpscentrum! Nieuwe moderne verkaveling op 1,5km van het dorpscentrum! Nieuwe moderne verkaveling op 1,5km van het dorpscentrum! Nieuwe moderne verkaveling op 1,5km van het dorpscentrum!
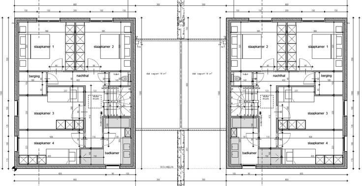
Deze NIEUWE RESIDENTIëLE WIJK bevindt zich op een CENTRALE LIGGING, in een zijstraat van een verbindingsweg TORHOUT - ROESELARE, dit op 1,5 km van het centrum van GITS! Hier worden 4 MODERNE VRIJSTAANDE VILLA's opgericht (lot 17+18 en 22+23). Deze woningen bevinden zich op het EINDE van een DOODLOPENDE STRAAT, een UITERSTE RUSTIGE LIGGING! Iedere woning omvat inkomhal met gastentoilet, lichtrijke woonkamer (40m²) met open ingerichte keuken, praktisch ruime berging. Op de bovenverdieping is er de nachthall, 4 mooie slaapkamers, ingerichte badkamer met ligbad en/of inloopdouche, afzonderlijk toilet en berging. De tuinen zijn ofwel zuidoost (lot 17+18) ofwel zuidwest gericht (lot 22+23). De woningen worden voorzien van een CARPORT en VLOERVERWARMING zowel op het gelijkvloerse als op de verdieping! E-peil 30. Verkoop onder BTW-stelsel. Renovatieplicht: nee
Type vastgoed Huis
Prijs 374.000
Aantal slaapkamers 1
Aantal badkamers 1