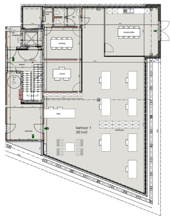
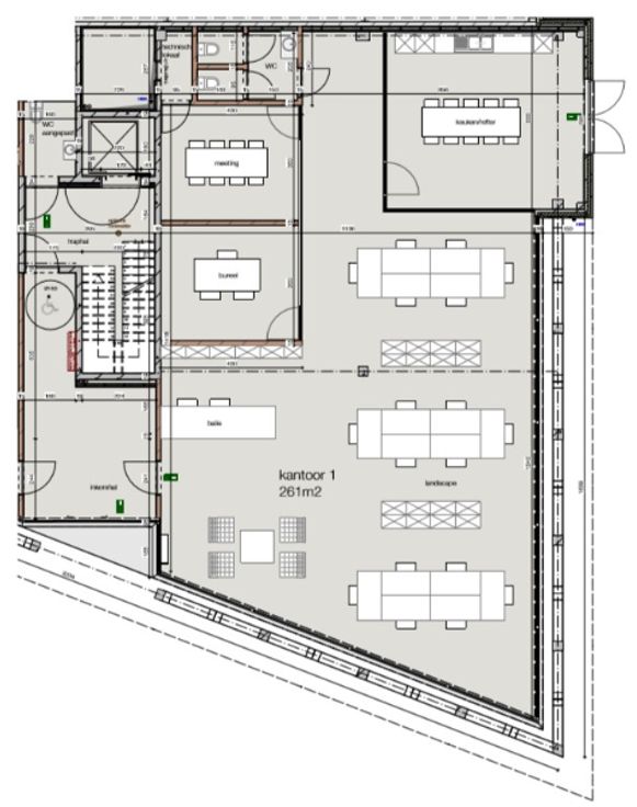
Kantoor 01 gelegen op het gelijkvloers is 261 m² groot en beschikt als enige over privatieve toiletten.
De Schaarbeek biedt een 8 tal energiezuinige kantoorruimtes, vanaf 224 m², in een prachtige ultra moderne architectuurstijl. De open space werkruimtes zijn flexibel in te delen en bieden bijzonder veel lichtinval door de grote glaspartijen.
Het gebouw is voorzien van een doucheruimte en is rolstoeltoegankelijk. Buiten is een pick-nickplaats, fietsenstalling en een ruime parkeerplaats met mogelijkheid voor laadpalen.
Het nieuwbouwproject De Schaarbeek geniet een uitstekende bereikbaarheid op enkele seconden van de afrit 16 Kruibeke (E17). Hierdoor zijn zowel Antwerpen als Gent vlot bereikbaar via de E17. Een extra troef is de bereikbaarheid van Brussel via de E19 of de A12 (in combinatie met N16 of ring van Antwerpen)
Verkoopprijzen zijn excl. kosten en parkeerplaatsen zijn afzonderlijk bij te kopen.
Contacteer Gaëtan voor meer info of een vrijblijvend plaatsbezoek op 0477 473 966
Renovatieplicht: onbekend