Te huur HORECARUIMTE TE HUUR

Beschrijving van   

Vergelijk realty's

Te huur HORECARUIMTE TE HUUR

HORECARUIMTE TE HUUR
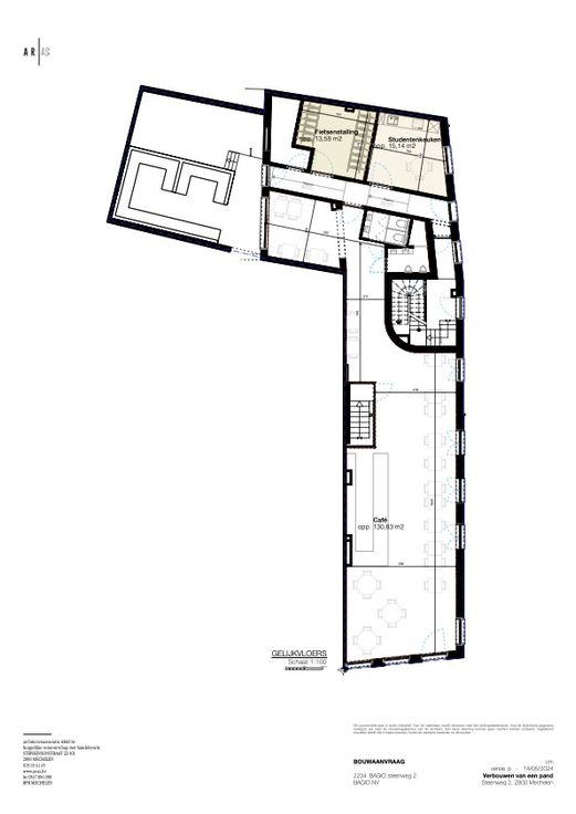
Pal in het centrum van Mechelen, is de voormalige Barramundo te huur. Dit was voordien een iconisch café en is opzoek naar een nieuwe invulling. Het pand is volledig vernieuwd en opzoek naar een nieuw concept, uitermate geschikt voor een: cafe, koffiebar, brunchplek,... . De oppervlakte is 130 m2 met zowel een intern terras als de mogelijkheid om buiten een terras te zetten voor het pand. Contacteer ons gerust voor een bezoek ter plaatse.
Type vastgoed Commercieel
Prijs 2.500