Te koop Huis

Beschrijving van   

Vergelijk realty's

Te koop Huis

Huis Huis Huis Huis Huis Huis Huis Huis Huis Huis Huis Huis Huis Huis Huis
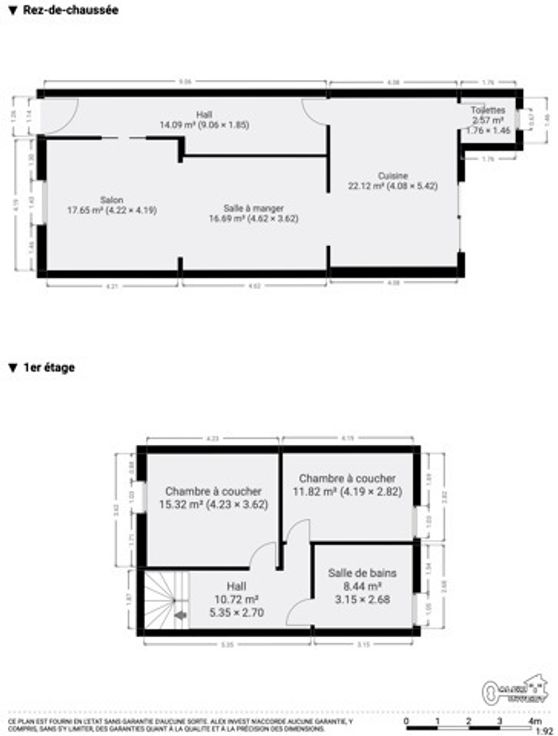
Mooi huis van ongeveer 149m2 woonoppervlakte, gelegen in de buurt van alle voorzieningen. Het is als volgt samengesteld: GELIJKVLOERS: Inkomhal, grote woonkamer van ongeveer 35m2 die uitkomt op een lichte, open moderne ingerichte keuken met eetruimte en apart toilet. 1e VERDIEPING: Nachthal, 2 slaapkamers (+/- 15 en 12m2) en badkamer met bad, douche en toilet. KELDERS, INRICHTBARE ZOLDER, TERRAS en TUIN. Centrale verwarming op gas, Dubbele beglazing in PVC ramen. Biedingen vanaf €225.000, onder voorbehoud van goedkeuring door de eigenaars. Neem snel contact met ons op om een bezichtiging in te plannen voor dit gegeerde pand!
Type vastgoed Huis
Prijs Op aanvraag
Bewoonbare opp. 149
Aantal slaapkamers 2
Aantal badkamers 1