Te koop Huis

Beschrijving van   

Vergelijk realty's

Te koop Huis

Huis Huis Huis Huis Huis Huis Huis Huis Huis Huis Huis Huis Huis Huis Huis Huis Huis Huis Huis Huis Huis Huis Huis
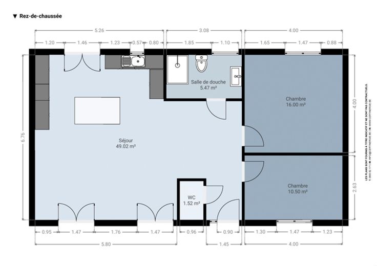
Réf.: 132. Superbe plain-pied rénové bien situé dans un endroit calme! Ile se compose: d'un hall d'entrée, une WC séparé, un spacieux séjour lumineux (salon,salle à manger) avec magnifique cuisine ouverte très pratique et équipée d'électroménagers récents, une salle de bain (douche, lavabo, WC), 2 spacieuses chambres et un grenier de stockage (possibilité d'aménager une chambre supplémentaire). Au sous-sol: un grand garage pour 2 véhicules et des caves sur toute la surface de l'habitation! A l'extérieur: un jardin clôturé et bien orienté, un passage latéral et un parking aisé pouvant accueillir de nombreux véhicules sur l'avant. Divers: châssis PVC double vitrage, chauffage central gaz, nouvelle toiture, électricité refaite,RC:614€...A visiter sans tarder! Faire offre à partir de 245.000,00€. Informations communiquées à titre indicatif et non contractuel. Les propriétaires se réservent le droit d'apprécier la hauteur et la qualité des offres. Nous sommes constamment à la recherche de nouveaux biens pour nos clients en attente, n'hésitez pas à nous contacter au 0499 924 999 pour UNE ESTIMATION GRATUITE SOUS 48H ET FAITE PAR LE PATRON EN PERSONNE. Concernant le choix de l'acquéreur; les critères de sélection du propriétaire ne sont pas uniquement le prix. Le choix reste à l'appréciation de ce dernier qui seul en décidera.
Type vastgoed Huis
Prijs 245.000
Bewoonbare opp. 84
Aantal slaapkamers 2
Aantal badkamers 1