Te koop Huis

Beschrijving van   

Vergelijk realty's

Te koop Huis

Huis Huis Huis Huis Huis Huis Huis Huis Huis Huis Huis Huis Huis Huis Huis Huis Huis Huis Huis Huis Huis Huis Huis Huis
: Total énergie primaire: 41559 kwh/an, EPC certificaat nb., : 92 Kg Co2m²an, : 373 Kwh
Type vastgoed Huis
Prijs 257.500
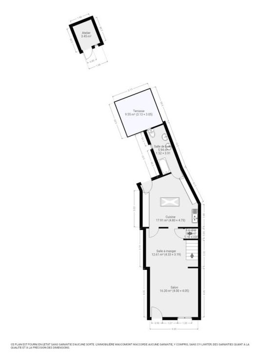
Bewoonbare opp. 111
Aantal slaapkamers 2
Aantal badkamers 1