Te koop Appartement

Beschrijving van   

Vergelijk realty's

Te koop Appartement

Appartement Appartement Appartement Appartement Appartement Appartement Appartement
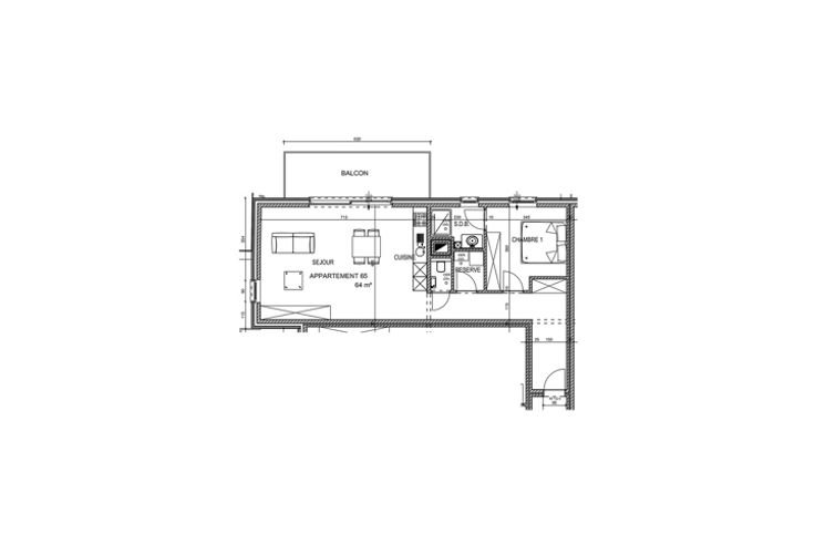
Appartement 1 chambre situés dans la Résidence Les Jardins de l'Abbaye, troisième phase du projet Le Sarma, à proximité du centre-ville de Mouscron et des axes routiers. Caractéristiques générales : Hall d'entrée desservant un WC séparé avec lave-mains, 1 chambre et une salle de bain avec douche 90x120, meuble vasque, colonne de rangement et miroir avec éclairage, séjour avec cuisine équipée ouverte d'une valeur de 5.000€ HTVA, buanderie, terrasse et ascenseur. Caractéristiques techniques : isolation thermique et acoustique, système de ventilation simple flux de type C, châssis double-vitrage en PVC ou en aluminium blancs à l'intérieur et dans les tons gris à l'extérieur, tablettes extérieures des fenêtres en pierre naturelle ou équivalent, portes intérieurs prêtes à peindre avec encadrement en bois, chauffage au gaz par chaudière à condensation, radiateurs thermostatiques, carrelage céramique 45 x 45 cm et plinthes d'une valeur de 30 € HTVA / m², faïences d'une valeur de 25 € HTVA / m³ sur toute la hauteur des murs de la douche, dalles 60 x 60 cm sur plots sur la terrasse, balustrades en verre sur structure en aluminium, vidéophonie Possibilité d'acquérir un garage au prix de 29.000€ HTVA Retrouvez toutes les informations sur ce projet sur notre site www.immoaplus.be PEB visé : B Livraison prévue été 2025 Prix affichés hors frais - Vente sous Loi Breyne, régime des droits d’enregistrement (12,5 %) sur le terrain et régime de la TVA (21%) sur la construction, éligib
Type vastgoed Appartement
Prijs 175.000
Bewoonbare opp. 64
Aantal slaapkamers 1
Aantal badkamers 1