Te koop Appartementsblok

Beschrijving van   

Vergelijk realty's

Te koop Appartementsblok

Appartementsblok Appartementsblok Appartementsblok Appartementsblok Appartementsblok Appartementsblok Appartementsblok Appartementsblok Appartementsblok Appartementsblok Appartementsblok Appartementsblok Appartementsblok Appartementsblok Appartementsblok Appartementsblok Appartementsblok Appartementsblok Appartementsblok Appartementsblok Appartementsblok Appartementsblok Appartementsblok Appartementsblok Appartementsblok
Andere uitrusting: Dubbele beglazing . : Total énergie primaire: 28799 kwh/an, EPC certificaat nb., : 49 Kg Co2m²an, : 264 Kwh
Type vastgoed Huis
Prijs 295.000
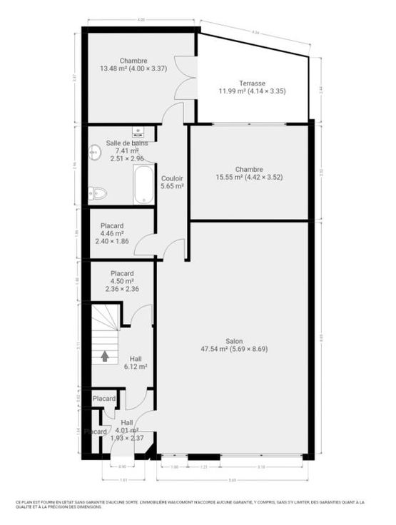
Bewoonbare opp. 220
Aantal slaapkamers 4
Aantal badkamers 2