Te koop Bouwgrond

Beschrijving van   

Vergelijk realty's

Te koop Bouwgrond

Bouwgrond Bouwgrond Bouwgrond Bouwgrond Bouwgrond Bouwgrond Bouwgrond Bouwgrond
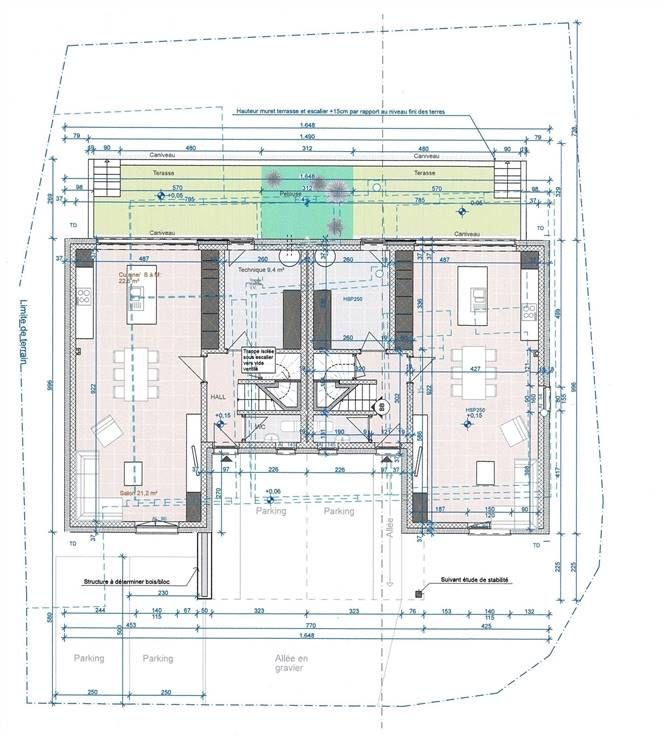
Sorry er is geen nederlandse vertaling beschikbaar. A vendre à Tournay ( commune de Neufchâteau) 2, Chemin de Roivau, terrain sur lequel se trouve une maison à démolir et pour lequel un permis d'urbanisme a été délivré pour la construction de deux maisons mitoyennes avec 5 chambres à coucher de belles dimensions, un grand séjour/cuisine ouverte d'une superficie de près de 50 m², une terrasse à l'arrière. Très bonne situation géographique, proche de l'autoroute vers Luxembourg, mais au calme dans le joli village de Tournay. Prix : 125.000 € pour le terrain permettant la construction de 2 maisons et le permis d'urbanisme octroyé.
Type vastgoed Grond
Prijs 125.000