Te koop Handelspand met woonst

Beschrijving van   

Vergelijk realty's

Te koop Handelspand met woonst

Handelspand met woonst Handelspand met woonst Handelspand met woonst Handelspand met woonst Handelspand met woonst Handelspand met woonst Handelspand met woonst Handelspand met woonst Handelspand met woonst Handelspand met woonst Handelspand met woonst
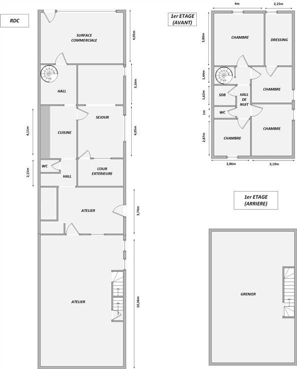
Dit ruime bedrijfspand is ideaal gelegen aan een drukke verkeersader, op een steenworp afstand van het stadscentrum en alle voorzieningen, en biedt een uitstekende zichtbaarheid. Deze voormalige bakkerij heeft een totale oppervlakte van 330 m² (exclusief kelder), inclusief een commerciële ruimte, verschillende werkplaatsen aan de achterzijde, een woonruimte (op 2 niveaus) en twee ruime zolders die verbouwd kunnen worden, een binnenplaats en een kelder. Met verschillende aparte ingangen is dit gebouw ideaal voor iedereen die op zoek is naar ruime accommodatie met veel verbouwingsmogelijkheden. Prijs: 179.000 euro. BEZOEK!!!
Type vastgoed Commercieel
Prijs 159.000
Aantal badkamers 1