Te koop Huis

Beschrijving van   

Vergelijk realty's

Te koop Huis

Huis Huis Huis Huis Huis Huis Huis Huis Huis Huis Huis Huis Huis Huis Huis Huis Huis
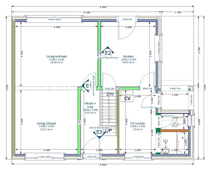
Te renoveren landhuis in een rustige, kindvriendelijke straat nabij het park van Wijnegem en in de buurt van winkels, scholen, openbaar vervoer, etc....Op de gelijkvloerse verdieping vinden we een inkomhal die toegang geeft tot de leefruimte met logische indeling tussen eetkamer en salon. De keuken met zicht op de grote tuin, is zeer basic. Achter de keuken vinden we de wasplaats met apart toilet, kleine badkamer met douche en aansluiting voor wasmachine en droogkast. Op de eerste verdieping zijn er 3 slaapkamers en een bureau met lavabo en afgesloten bergruimte. Een vaste trap leidt ons naar de onafgewerkte zolder, die mogelijkheid biedt om hier nog een extra slaapkamer/speelkamer van te maken. De woning is voorzien van een kelder van +- 7m2. Verder ligt er naast de woning een garage van +- 20m2. De diepe tuin (met tuinberging) ligt enkele meters lager dan de woning, en ziet uit op de mooie site van Axel Vervoordt. Zou u graag de bewoonbare oppervlakte wensen uit te breiden, deze mogelijkheid is zeker aanwezig. Qua locatie is deze woning een topper. Voor meer info of een vrijblijvend bezoek: 0479/9 34 34 9 (Kristof)
Type vastgoed Huis
Prijs 430.000
Bewoonbare opp. 145
Aantal slaapkamers 4
Aantal badkamers 1