Te koop Nieuw te bouwen 3-gevelwoning te Ede-Haal...

Beschrijving van   

Vergelijk realty's

Te koop Nieuw te bouwen 3-gevelwoning te Ede-Haaltert

Nieuw te bouwen  3-gevelwoning te Ede-Haaltert Nieuw te bouwen  3-gevelwoning te Ede-Haaltert Nieuw te bouwen  3-gevelwoning te Ede-Haaltert Nieuw te bouwen  3-gevelwoning te Ede-Haaltert Nieuw te bouwen  3-gevelwoning te Ede-Haaltert
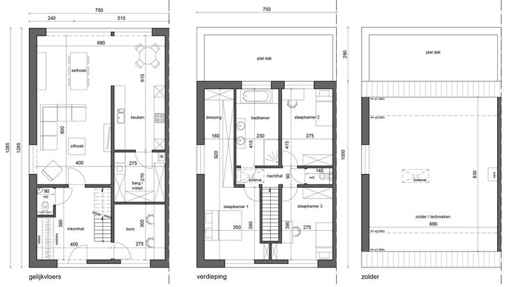
TE KOOP te Haaltert, perceel bouwgrond voor halfopen bebouwing, centraal gelegen. Via onze bouwpartner NB-projects kan U hier de woning van uw dromen laten bouwen, volledig op maat volgens uw wensen en budget! Grond + voorgestelde woning = 584.866 € ( prijs inclusief architect, metingskosten, EPB, landmeter,registratie, BTW op de constructie,...) Bouwmogelijkhden maximaal = 8 x 15 m op het gelijkvloers en 8 x 12 m op de verdieping, 2 volledige bouwlagen + dakverdieping. Maak nu reeds uw afspraak voor verdere toelichting en vrijblijvende bespreking van de verschillende bouwmogelijkheden. email: info@denderimmo.be TEL: 0475 87 19 19
Type vastgoed Huis
Prijs 584.866
Bewoonbare opp. 171
Aantal slaapkamers 3
Aantal badkamers 1