Te koop GOED GELEGEN LOODS/ATELIER

Beschrijving van   

Vergelijk realty's

Te koop GOED GELEGEN LOODS/ATELIER

GOED GELEGEN LOODS/ATELIER GOED GELEGEN LOODS/ATELIER GOED GELEGEN LOODS/ATELIER GOED GELEGEN LOODS/ATELIER GOED GELEGEN LOODS/ATELIER GOED GELEGEN LOODS/ATELIER
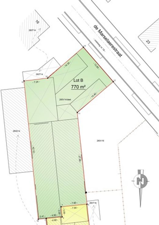
Zeer goed gelegen loods/atelier, geschikt voor verschillenden doeleinden (vroegere schrijnwerkerij) indeling : toegang/parking met af te breken lichte constructies Loods bestaande uit 2 delen met een oppervlakte van elk 200 m² gedeelte zonder verdiep met zadeldak  gedeelte met verdiep met plat dak Zeer degelijke constructie
Type vastgoed Commercieel
Prijs 495.000
Bewoonbare opp. 600