Te koop Appartement

Beschrijving van   

Vergelijk realty's

Te koop Appartement

Appartement Appartement Appartement
*** VENDU ***
Type vastgoed Appartement
Prijs Op aanvraag
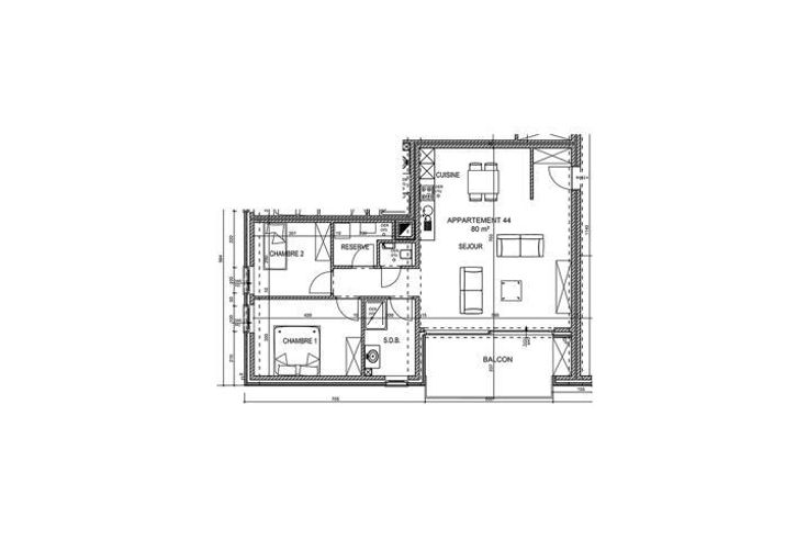
Bewoonbare opp. 80
Aantal slaapkamers 2
Aantal badkamers 1