Te koop Huis

Beschrijving van   

Vergelijk realty's

Te koop Huis

Huis Huis Huis Huis Huis Huis Huis Huis Huis Huis Huis Huis Huis Huis Huis Huis Huis Huis Huis Huis Huis Huis Huis Huis Huis Huis Huis Huis
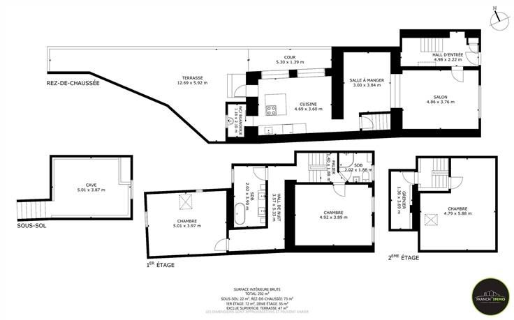
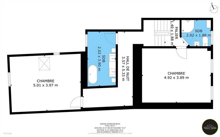
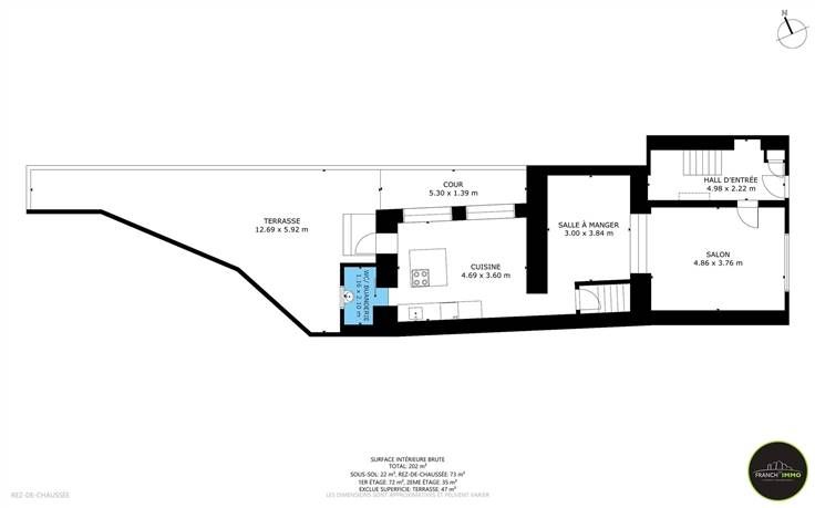
Sorry er is geen nederlandse vertaling beschikbaar. Votre bureau immobilier FRANCH’IMMO vous propose une maison 3 chambres rénovée à Pepinster centre. A vos cartons, maison toute rénovée dans le centre de Pepinster. Elle se compose de : D'un rez de chaussée : hall d'entrée, salon, salle à manger, cuisine équipée, un WC 1er étage: 2 chambres, une salle de bain et une salle de douche 2ème étage; une chambre Cave, cour de +/- 70m² en pavée. Double vitrage en pvc Chaudière au gaz naturel, à condensation. N'hésitez pas à nous contacter pour une visite et tomber sous le charme de cette maison familiale. PEB: B=152 kWh/m².an Etotal 31 420 kWh/an 20240616007212
Type vastgoed Huis
Prijs 249.000
Bewoonbare opp. 200
Aantal slaapkamers 3
Aantal badkamers 1