Te koop Huis

Beschrijving van   

Vergelijk realty's

Te koop Huis

Huis Huis Huis Huis Huis Huis Huis Huis Huis Huis
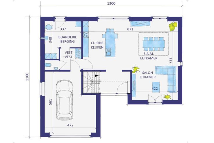
NIEUW TE BOUWEN VILLA IN MONDERNE SOD AFGEWERKT. Nieuwbouw sleutel-op-de-deur uitgevoerd in moderne bouwstijl, voorzien op ideaal gelegen grond van 629 m² met goede ligging, ruime tuin. Project waarbij aandacht wordt besteed aan het behalen van een zeer laag energiepeil en moderne look. De woning wordt voorzien van driedubbele beglazing, ventilatiesysteem type D passief, Fotovoltaische installatie, performante isolatie en hoogwaardige afwerking door onze sterke lastenboek. De woning omvat: inkomhal, toilet, open in te richten keuken, ruim salon, eetkamer, berging en garage, op de verdieping vindt men 4 slaapkamers waarvan 1 met dressing , 2 badkamers volledig geinstalleerd en nachthal. Dit alles voorzien in de vorm van een uitgepuurd ontwerp met tal van personalisatiemogelijkheden: indeling en materialen zijn vrij te kiezen. Meer info via Team Construct op het nummer: 02/556.47.56 of via info@teamconstruct.be, bezoek onze site www.teamconstruct.be, bezoek onze showroom te Sint-Pieters-Leeuw op afspraak of bezichtig onze kijkwoning te Meise. Prijs ALL-IN: 653.868€
Type vastgoed Huis
Prijs 555.188
Bewoonbare opp. 220
Aantal slaapkamers 4
Aantal badkamers 2