Te koop Bel-etage

Beschrijving van   

Vergelijk realty's

Te koop Bel-etage

Bel-etage Bel-etage Bel-etage Bel-etage Bel-etage Bel-etage Bel-etage Bel-etage Bel-etage Bel-etage Bel-etage Bel-etage Bel-etage Bel-etage Bel-etage Bel-etage Bel-etage Bel-etage Bel-etage
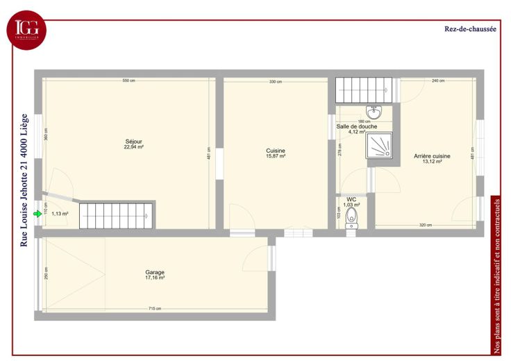
Maison à rénover dans le quartier de Burenville à Liège. Elle se compose comme suit: Au RDC: Un séjour, un espace cuisine, une salle d'eau avec WC, une buanderie donnant accès à une belle cour, un garage. A l'étage deux belles chambres et un grand WC pouvant être aménagé en salle de douche. Electricité à revoir, chauffage centrale au gaz avec chaudière à condensation (3 ans), châssis simple vitrage ALU, toiture en bon état. RC: 720€ (Possibilité d'obtenir les frais réduits). PEB F. Prix 109.000€ FAIRE OFFRE. Infos et visites : contact@igg.immo ou 0489/84 99 99
Type vastgoed Huis
Prijs Op aanvraag
Bewoonbare opp. 100
Aantal slaapkamers 2