Te koop Bouwgrond met vergunning

Beschrijving van   

Vergelijk realty's

Te koop Bouwgrond met vergunning

Bouwgrond met vergunning Bouwgrond met vergunning Bouwgrond met vergunning Bouwgrond met vergunning Bouwgrond met vergunning Bouwgrond met vergunning Bouwgrond met vergunning Bouwgrond met vergunning Bouwgrond met vergunning Bouwgrond met vergunning
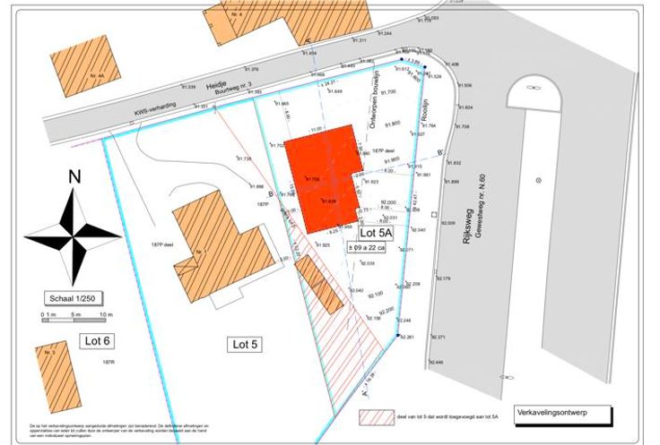
Deze bouwgrond is gelegen in het groene Maarkedal & kent een vlotte bereikbaarheid door zijn ligging op de Rijksweg. Er is reeds een vergunning uitgeschreven voor het oprichten van een open bebouwing, een groot plusplunt dus! Deze grond leent zich ook enorm tot het oprichten van een onroerend goed met andere doeleinden dan wonen, dit onder andere door de grote zichtbaarheid. Contacteer DMG vastgoed voor meer info.
Type vastgoed Grond
Prijs 199.000