Te koop Nieuw te bouwen woning te Sint-Gillis-Dend...

Beschrijving van   

Vergelijk realty's

Te koop Nieuw te bouwen woning te Sint-Gillis-Dendermonde

Nieuw te bouwen woning te Sint-Gillis-Dendermonde Nieuw te bouwen woning te Sint-Gillis-Dendermonde
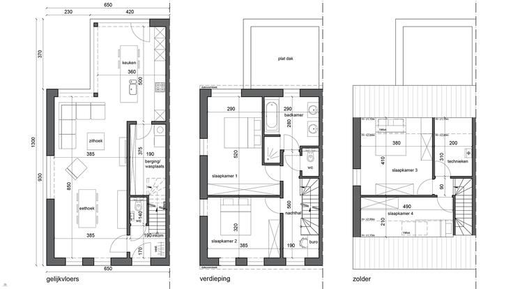
Nieuw te bouwen halfopen bebouwing te Sint-Gillis-Dendermonde. Voorbeeldwoning: indeling vrij te kiezen.Onze woningen worden afgewerkt met standaard duurzame kwalitatieve materialen waarvoor ruime budgetten worden voorzien.Als bouwheer heeft u volledige inspraak gaande van bouwstijl, materialen en afwerking. Zo kunnen we u steeds een perfect beeld geven van de kostprijs rekening houdend met uw vooropgestelde budgetPrijs grond met voorgestelde voorbeeldwoning incl. btw, registratierechten, architectenereloon, EPB, veiligheidcoordinatie, blowerdoortest, en keuring riolering.Ventilatiesysteem D met warmterecuperatieZonnepanelen voorzien in de prijs, volgens voorstudie EPB-verslagWoning vrij te kiezen na afspraak met architect.Meer info enlastenboek zijn te verkrijgen op kantoor of bij afspraak. Aarzel niet ons te contacteren.Bouwen met meerwaarde doe je met NB-Projects______
Type vastgoed Huis
Prijs 582.039
Bewoonbare opp. 176
Aantal slaapkamers 4
Aantal badkamers 1