Te huur Commerciële panden

Beschrijving van   

Vergelijk realty's

Te huur Commerciële panden

Commerciële panden Commerciële panden Commerciële panden Commerciële panden Commerciële panden Commerciële panden
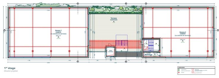
Rez-de-chaussée commercial de 300m² à l'angle de l'Avenue des Etats-Unis et du Faubourg de Bruxelles, sortie Autoroute E42 - entrée City Nord. Excellente visibilité - accessibilité ! L'immeuble se compose de 546m² (divisible) de commerces au rez & deux unités de bureaux/horeca à l'étage. Livraison CASCO Permis d'urbanisme obtenu Livraison 03/2025 Précompte immobilier à charge du locataire Infos auprès du délégué en charge du dossier, Gilles HALLET 0470/56.15.02
Type vastgoed Commercieel
Prijs 4.503
Bewoonbare opp. 300